472 000€
Appt. au 1er
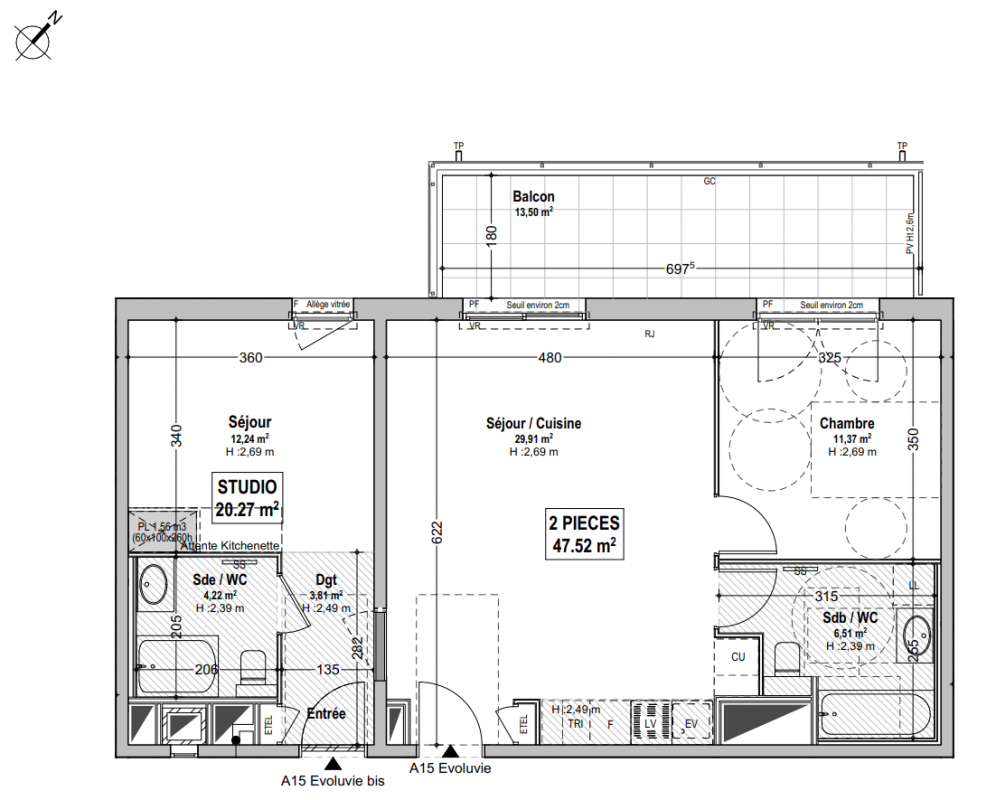
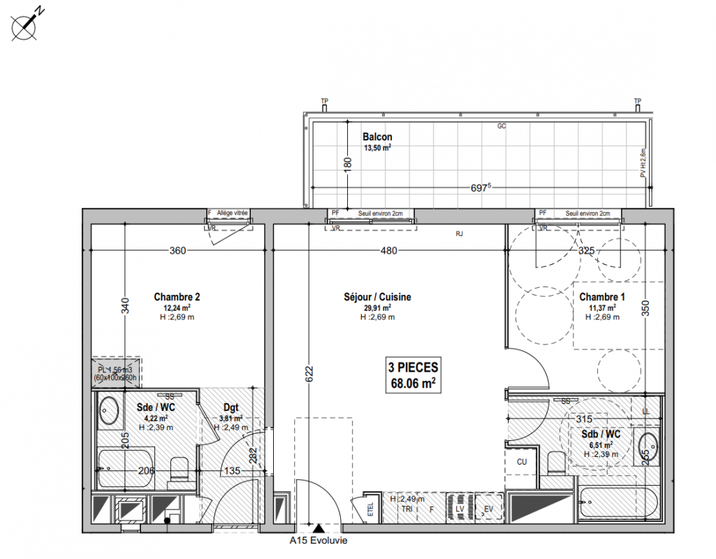
T3
68.06 m²
Nord-Ouest
Marseille 8ème (13008)
2ème trimestre 2027
01 81 80 39 10
Présentation du programme " L'ORÉE BORÉLY "
Bienvenue à Marseille !Emplacement d'exception entre ville et mer ! Vous rêvez d'une adresse paisible et privilégiée au cœur du 8ème arrondissement de Marseille ? Ne manquez pas nos opportunités d'acquisition d'appartements neufs, du 2 au 5 pièces, avec une vue imprenable sur le Massif des Calanques et la mer, à deux pas du Parc Borély et des plages du Prado.
Située au calme d’une impasse, dans un parc paysager et arboré, la résidence propose des équipements exclusifs pour ses résidents, tels qu'une salle de sport, une buanderie commune, une loge gardien et des halls d'entrée au design soigné. De plus, toutes les places de stationnement seront situées en sous-sol pour plus de confort et de sécurité.
Chaque appartement offre un cadre de vie exceptionnel avec des espaces extérieurs privatifs tels que de grandes terrasses, des jardins ou des solariums. Profitez d'une belle pièce de vie, d'une ou plusieurs salles d'eau et d'un confort optimal grâce à une hauteur sous plafond généreuse et un système de rafraîchissement par pompe à chaleur collective.
Découvrez nos appartements EVOLUVIE, un concept novateur breveté qui permet de transformer un T3 en un T1 + T2 pour une MEILLEURE RENTABILITÉ LOCATIVE. Cette transformation reste totalement réversible en cas d’évolution de votre projet de vie ou de revente.
Du T2 au T4, prix communiqués avec 1 stationnement, à partir du T5, prix communiqués avec 2 stationnements
Autres logements T3 du programme " L'ORÉE BORÉLY "
Disponibilité | Prix | No | Genre | Pièces | Surface | Étage | Disponibilité | Prix | ||
---|---|---|---|---|---|---|---|---|---|---|
Voir | Disponible | 570 000€ | A16 | Appt. | T3 | 74.79m2 | 1er | Disponible | 570 000€ | Voir |
Voir | Disponible | 491 000€ | A25 | Appt. | T3 | 68.06m2 | 2ème | Disponible | 491 000€ | Voir |
Voir | Disponible | 578 000€ | A26 | Appt. | T3 | 74.8m2 | 2ème | Disponible | 578 000€ | Voir |
Voir | Disponible | 596 000€ | A36 | Appt. | T3 | 74.79m2 | 3ème | Disponible | 596 000€ | Voir |
Voir | Disponible | 479 000€ | B11 | Appt. | T3 | 66.77m2 | 1er | Disponible | 479 000€ | Voir |
Voir | Disponible | 556 000€ | C13 | Appt. | T3 | 75.23m2 | 1er | Disponible | 556 000€ | Voir |
Voir | Disponible | 567 000€ | C23 | Appt. | T3 | 75.23m2 | 2ème | Disponible | 567 000€ | Voir |
Voir | Disponible | 501 000€ | C25 | Appt. | T3 | 66.94m2 | 2ème | Disponible | 501 000€ | Voir |
Voir | Disponible | 511 000€ | C35 | Appt. | T3 | 66.94m2 | 3ème | Disponible | 511 000€ | Voir |