297 100€ (TVA 20%)
261 200€ (TVA 5.5%)
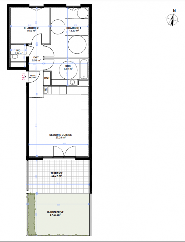
Appt. au 3ème
T3
66.08 m²
-
Marseille 13ème (13013)
4ème trimestre 2028
01 81 80 39 10
Présentation du programme "Latitude 13 - Augustin Merlhou"
Une opération résidentielle accessible et sécurisée, idéale pour primo-accédants
Localisation - Marseille 13ᵉ, quartier La Rose
Le programme Latitude 13 est situé Allée Augustin Merlhou, dans le quartier de La Rose, au sein du 13ᵉ arrondissement de Marseille. L'opération bénéficie d'un accès immédiat au métro Ligne 1 (station La Rose), permettant une connexion rapide au centre-ville, à la gare Saint-Charles et aux principaux pôles d'emploi marseillais. Un emplacement stratégique pour une clientèle primo-accédante recherchant mobilité, services et accessibilité budgétaire.
Description de l'opération : La résidence se compose de 3 immeubles contemporains, sécurisés, labellisés NF HQE, développant 58 logements neufs en accession, du studio au 5 pièces.
L'ensemble est conforme à la RE 2020 - seuil 2025, garantissant performance énergétique, charges maîtrisées et valorisation patrimoniale dans le temps.
Typologies et cibles :
- Studios / 2 pièces : jeunes actifs, primo-accédants solos ou couples.
- 3 pièces : coeur de cible primo-accédants, couples avec projet familial.
- 4 et 5 pièces : familles recherchant un premier achat durable.
Tous les logements bénéficient d'espaces extérieurs privatifs (balcons, terrasses ou jardins selon typologies).
Arguments commerciaux clés :
- TVA réduite à 5,5 % (zone éligible, sous conditions de ressources).
- Offre neuve rare dans Marseille intra-muros à prix accessible.
- Forte desserte transports : métro + 12 lignes de bus.
- Résidence sécurisée, conforme aux dernières normes environnementales.
- Présence d'espaces partagés (city stade) favorisant l'usage résidentiel et la vie de quartier.
- Stationnements extérieurs sécurisés et local vélos en sous-sol.
Environnement et services : Le programme s'inscrit dans un quartier vivant et équipé :
- Commerces de proximité.
- Écoles, collèges et équipements publics accessibles à pied.
- Services et infrastructures du quotidien à proximité immédiate.
Offre de lancement - Levier commercial
Pour les 5 premiers réservataires :
- Remise de 1 000 € par pièce.
- Frais de notaire offerts*.
Un levier efficace pour accélérer la prise de décision et sécuriser les premiers lots.
Synthèse prescripteur :
- Produit lisible et facilement finançable.
- Cible primo-accédante bien identifiée.
- Dispositifs d'aide à l'accession activables.
- Localisation urbaine connect...
Autres logements T3 du programme "Latitude 13 - Augustin Merlhou"
| Disponibilité | Prix | No | Genre | Pièces | Surface | Étage | Disponibilité | Prix | ||
|---|---|---|---|---|---|---|---|---|---|---|
| Voir | Disponible | 293 630€ | D 303 | Appt. | T3 | 59.61m2 Le bon plan | 3ème | Disponible | 293 630€ | Voir |
| Voir | Optionné | 270 370€ | D 403 | Appt. | T3 | 59.6m2 | 4ème | Optionné Mais pas encore vendu 😉 | 270 370€ | Voir |
| Voir | Disponible | 278 855€ | D 603 | Appt. | T3 | 59.6m2 | 6ème | Disponible | 278 855€ | Voir |
| Voir | Disponible | 284 360€ | D 401 | Appt. | T3 | 66.04m2 | 4ème | Disponible | 284 360€ | Voir |
| Voir | Disponible | 282 876€ | D 702 | Appt. | T3 | 59.31m2 | 7ème | Disponible | 282 876€ | Voir |
| Voir | Disponible | 286 897€ | D 802 | Appt. | T3 | 59.38m2 | 8ème | Disponible | 286 897€ | Voir |
| Voir | Disponible | 286 635€ | E 602 | Appt. | T3 | 59.71m2 | 6ème | Disponible | 286 635€ | Voir |
| Voir | Disponible | 283 223€ | E 604 | Appt. | T3 | 59.7m2 | 6ème | Disponible | 283 223€ | Voir |
| Voir | Disponible | 290 730€ | E 702 | Appt. | T3 | 59.71m2 | 7ème | Disponible | 290 730€ | Voir |
| Voir | Disponible | 287 204€ | E 704 | Appt. | T3 | 59.7m2 | 7ème | Disponible | 287 204€ | Voir |
| Voir | Disponible | 278 559€ | E 402 | Appt. | T3 | 59.71m2 | 4ème | Disponible | 278 559€ | Voir |
| Voir | Disponible | 297 236€ | C 601 | Appt. | T3 | 66m2 | 6ème | Disponible | 297 236€ | Voir |
| Voir | Disponible | 297 236€ | C 603 | Appt. | T3 | 66m2 | 6ème | Disponible | 297 236€ | Voir |