188 755€
Appt. au 0-RDC
-
29.48 m²
Sud-Est
Nice (06000)
3ème trimestre 2027
01 81 80 39 10
Présentation du programme "Symon(e) By Adonis Nice 4*"
La résidence Symone By Adonis Prestige 4* profite d'un accès rapide par le front de mer au centre de Nice, à quelques minutes à pied de la Promenade des Anglais. Situé dans le quartier Grand Arénas, ce programme est idéalement placé : il s'agit du 1er centre d'affaires international des Alpes-Maritimes. En 2025, le nouveau Palais des congrès va ouvrir ses portes et en 2028 ce sera le tour du pôle d'échanges multimodal. Ce pôle multimodal comprendra : une gare ferroviaire (TGV+TER), une gare routière, le tramway, une station de vélos et l'accès direct à l'aéroport par des voies dédiées. La résidence propose une gamme d'appartements "prestige" (du studio au 2 pièces) pour des séjours originaux autour de l'univers du gaming : idéal pour les séjours d'affaires, le tourisme de courte ou longue durée. Elle offre de nombreux espaces communs :RDC DE 480 M² :- salle de petit déjeuner de 132 m²- hall d'accueil/salon de 100 m²- co-working, salle de sport, salle de réunion- espace détente et bien-être- cuisine, bureaux, bagagerie, lingeriesROOF TOP DE 95 M² : piscine extérieure, bar, plage, sanitaires Chaque logement dispose de volumes spacieux, d'un espace de travail, avec une décoration pensée de manière ludique et fonctionnelle.
Autres logements - du programme "Symon(e) By Adonis Nice 4*"
Disponibilité | Prix | No | Genre | Pièces | Surface | Étage | Disponibilité | Prix | ||
---|---|---|---|---|---|---|---|---|---|---|
Voir | Disponible | 174 849€ | A002 | Appt. | - | 26.69m2 | 0-RDC | Disponible | 174 849€ | Voir |
Voir | Disponible | 180 360€ | A006 | Appt. | - | 28.17m2 | 0-RDC | Disponible | 180 360€ | Voir |
Voir | Optionné | 168 534€ | A103 | Appt. | - | 25.74m2 | 0-RDC | Optionné Mais pas encore vendu 😉 | 168 534€ | Voir |
Voir | Optionné | 141 576€ | A106 | Appt. | - | 21.62m2 | 0-RDC | Optionné Mais pas encore vendu 😉 | 141 576€ | Voir |
Voir | Optionné | 198 167€ | A203 | Appt. | - | 30.95m2 | 0-RDC | Optionné Mais pas encore vendu 😉 | 198 167€ | Voir |
Voir | Optionné | 168 534€ | A204 | Appt. | - | 25.74m2 | 0-RDC | Optionné Mais pas encore vendu 😉 | 168 534€ | Voir |
Voir | Disponible | 197 857€ | A303 | Appt. | - | 30.9m2 | 0-RDC | Disponible | 197 857€ | Voir |
Voir | Optionné | 168 534€ | A304 | Appt. | - | 25.74m2 | 0-RDC | Optionné Mais pas encore vendu 😉 | 168 534€ | Voir |
Voir | Optionné | 157 410€ | A309 | Appt. | - | 24.04m2 | 0-RDC | Optionné Mais pas encore vendu 😉 | 157 410€ | Voir |
Voir | Optionné | 139 355€ | A401 | Appt. | - | 21.25m2 | 0-RDC | Optionné Mais pas encore vendu 😉 | 139 355€ | Voir |
Voir | Disponible | 198 167€ | A403 | Appt. | - | 30.95m2 | 0-RDC | Disponible | 198 167€ | Voir |
Voir | Optionné | 157 410€ | A409 | Appt. | - | 24.04m2 | 0-RDC | Optionné Mais pas encore vendu 😉 | 157 410€ | Voir |
Voir | Disponible | 198 167€ | A503 | Appt. | - | 30.95m2 | 0-RDC | Disponible | 198 167€ | Voir |
Voir | Optionné | 137 525€ | A512 | Appt. | - | 20.99m2 | 0-RDC | Optionné Mais pas encore vendu 😉 | 137 525€ | Voir |
Voir | Optionné | 168 534€ | A604 | Appt. | - | 25.74m2 | 0-RDC | Optionné Mais pas encore vendu 😉 | 168 534€ | Voir |
Voir | Disponible | 196 313€ | B103 | Appt. | - | 30.67m2 | 0-RDC | Disponible | 196 313€ | Voir |
Voir | Disponible | 187 667€ | B104 | Appt. | - | 29.31m2 | 0-RDC | Disponible | 187 667€ | Voir |
Voir | Optionné | 150 539€ | B108 | Appt. | - | 22.99m2 | 0-RDC | Optionné Mais pas encore vendu 😉 | 150 539€ | Voir |
Voir | Disponible | 182 739€ | B202 | Appt. | - | 28.54m2 | 0-RDC | Disponible | 182 739€ | Voir |
Voir | Disponible | 187 606€ | B205 | Appt. | - | 29.3m2 | 0-RDC | Disponible | 187 606€ | Voir |
Voir | Disponible | 188 775€ | B206 | Appt. | - | 29.47m2 | 0-RDC | Disponible | 188 775€ | Voir |
Voir | Disponible | 184 659€ | B212 | Appt. | - | 28.84m2 | 0-RDC | Disponible | 184 659€ | Voir |
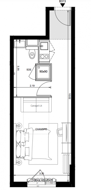
Voir | Optionné | 188 755€ | B213 | Appt. | - | 29.48m2 | 0-RDC | Optionné Mais pas encore vendu 😉 | 188 755€ | Voir |
Voir | Disponible | 182 739€ | B302 | Appt. | - | 28.54m2 | 0-RDC | Disponible | 182 739€ | Voir |
Voir | Disponible | 187 606€ | B405 | Appt. | - | 29.3m2 | 0-RDC | Disponible | 187 606€ | Voir |
Voir | Disponible | 182 801€ | B601 | Appt. | - | 28.55m2 | 0-RDC | Disponible | 182 801€ | Voir |
Voir | Disponible | 188 775€ | B606 | Appt. | - | 29.47m2 | 0-RDC | Disponible | 188 775€ | Voir |
Voir | Optionné | 184 659€ | B612 | Appt. | - | 28.84m2 | 0-RDC | Optionné Mais pas encore vendu 😉 | 184 659€ | Voir |
Voir | Optionné | 168 534€ | A504 | Appt. | - | 25.74m2 | 0-RDC | Optionné Mais pas encore vendu 😉 | 168 534€ | Voir |
Voir | Disponible | 180 248€ | B101 | Appt. | - | 28.11m2 | 0-RDC | Disponible | 180 248€ | Voir |
Voir | Disponible | 171 455€ | B105 | Appt. | - | 26.18m2 | 0-RDC | Disponible | 171 455€ | Voir |
Voir | Optionné | 150 539€ | B107 | Appt. | - | 22.99m2 | 0-RDC | Optionné Mais pas encore vendu 😉 | 150 539€ | Voir |
Voir | Optionné | 149 463€ | B207 | Appt. | - | 22.82m2 | 0-RDC | Optionné Mais pas encore vendu 😉 | 149 463€ | Voir |
Voir | Disponible | 188 775€ | B306 | Appt. | - | 29.47m2 | 0-RDC | Disponible | 188 775€ | Voir |
Voir | Disponible | 184 659€ | B512 | Appt. | - | 28.84m2 | 0-RDC | Disponible | 184 659€ | Voir |