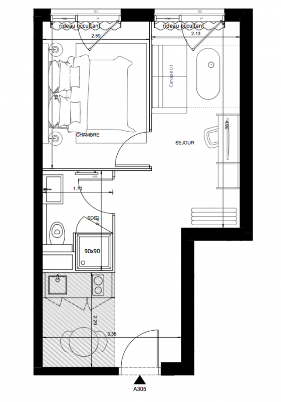
207 864€
Appt. au 0-RDC
T2
33.32 m²
Nord-Ouest
Nice (06000)
3ème trimestre 2027
01 81 80 39 10
Présentation du programme "Symon(e) By Adonis Nice 4*"
La résidence Symone By Adonis Prestige 4* profite d'un accès rapide par le front de mer au centre de Nice, à quelques minutes à pied de la Promenade des Anglais. Situé dans le quartier Grand Arénas, ce programme est idéalement placé : il s'agit du 1er centre d'affaires international des Alpes-Maritimes. En 2025, le nouveau Palais des congrès va ouvrir ses portes et en 2028 ce sera le tour du pôle d'échanges multimodal. Ce pôle multimodal comprendra : une gare ferroviaire (TGV+TER), une gare routière, le tramway, une station de vélos et l'accès direct à l'aéroport par des voies dédiées. La résidence propose une gamme d'appartements "prestige" (du studio au 2 pièces) pour des séjours originaux autour de l'univers du gaming : idéal pour les séjours d'affaires, le tourisme de courte ou longue durée. Elle offre de nombreux espaces communs :RDC DE 480 M² :- salle de petit déjeuner de 132 m²- hall d'accueil/salon de 100 m²- co-working, salle de sport, salle de réunion- espace détente et bien-être- cuisine, bureaux, bagagerie, lingeriesROOF TOP DE 95 M² : piscine extérieure, bar, plage, sanitaires Chaque logement dispose de volumes spacieux, d'un espace de travail, avec une décoration pensée de manière ludique et fonctionnelle.
Autres logements T2 du programme "Symon(e) By Adonis Nice 4*"
Disponibilité | Prix | No | Genre | Pièces | Surface | Étage | Disponibilité | Prix | ||
---|---|---|---|---|---|---|---|---|---|---|
Voir | Disponible | 222 135€ | A001 | Appt. | T2 | 35.56m2 | 0-RDC | Disponible | 222 135€ | Voir |
Voir | Optionné | 225 237€ | A101 | Appt. | T2 | 36.07m2 | 0-RDC | Optionné Mais pas encore vendu 😉 | 225 237€ | Voir |
Voir | Disponible | 199 574€ | A102 | Appt. | T2 | 31.99m2 | 0-RDC | Disponible | 199 574€ | Voir |
Voir | Disponible | 214 738€ | A402 | Appt. | T2 | 34.41m2 | 0-RDC | Disponible | 214 738€ | Voir |
Voir | Disponible | 223 187€ | B102 | Appt. | T2 | 35.76m2 | 0-RDC | Disponible | 223 187€ | Voir |
Voir | Disponible | 219 664€ | B109 | Appt. | T2 | 35.22m2 | 0-RDC | Disponible | 219 664€ | Voir |
Voir | Disponible | 225 932€ | B112 | Appt. | T2 | 36.2m2 | 0-RDC | Disponible | 225 932€ | Voir |
Voir | Disponible | 219 214€ | B204 | Appt. | T2 | 35.15m2 | 0-RDC | Disponible | 219 214€ | Voir |
Voir | Disponible | 227 214€ | B214 | Appt. | T2 | 36.42m2 | 0-RDC | Disponible | 227 214€ | Voir |
Voir | Disponible | 219 664€ | B410 | Appt. | T2 | 35.22m2 | 0-RDC | Disponible | 219 664€ | Voir |
Voir | Disponible | 207 864€ | A104 | Appt. | T2 | 33.32m2 | 0-RDC | Disponible | 207 864€ | Voir |
Voir | Disponible | 214 738€ | A502 | Appt. | T2 | 34.41m2 | 0-RDC | Disponible | 214 738€ | Voir |
Voir | Optionné | 214 738€ | A602 | Appt. | T2 | 34.41m2 | 0-RDC | Optionné Mais pas encore vendu 😉 | 214 738€ | Voir |
Voir | Optionné | 218 058€ | B311 | Appt. | T2 | 34.96m2 | 0-RDC | Optionné Mais pas encore vendu 😉 | 218 058€ | Voir |
Voir | Disponible | 219 214€ | B404 | Appt. | T2 | 35.15m2 | 0-RDC | Disponible | 219 214€ | Voir |
Voir | Disponible | 219 214€ | B504 | Appt. | T2 | 35.15m2 | 0-RDC | Disponible | 219 214€ | Voir |
Voir | Disponible | 219 214€ | B604 | Appt. | T2 | 35.15m2 | 0-RDC | Disponible | 219 214€ | Voir |