Prix
2 384 500€
Type
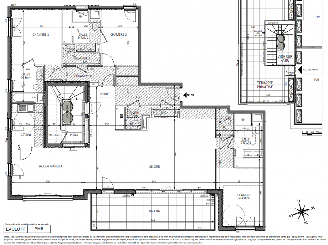
Appt. au 1er
Pièces
T4
Surface
157.41 m²
Exposition
-
Ville
Beausoleil (06240)
Livraison
2ème trimestre 2028
Informations
01 81 80 39 10

Présentation du programme "2915 AVENUE DU PRINCE RAINIER III"

DES INTÉRIEURS SOIGNÉS

Chape isophonique
Parquet contrecollé dans les séjours et les chambres
Climatisation réversible gainable
Carrelage au sol et faïence toute hauteur au pourtour des baignoires et des douches
Meuble vasque surmonté d’un miroir éclairé dans les salles de bains et salles d’eau
Sèche-serviette et pare-douche
Placards aménagés Menuiseries extérieures en aluminium laqué
Volets roulants motorisés
Garde-corps ferronnés ou vitrés selon orientation
Pré-équipement domotique

DES ÉQUIPEMENTS PRATIQUES

Hall et paliers d’étages décorés par un architecte d’intérieur
Parkings sécurisés en toiture
Local à vélos
Possibilité de cave en rez-de-jardin
Espace bien-être avec équipements de fitness, spa, hammam et sauna

UNE SÉCURITÉ RENFORCÉE

Portes palières munies d’une serrure A2P**
Vidéophone et contrôle d’accès par Vigik®

Autres logements T4 du programme "2915 AVENUE DU PRINCE RAINIER III"

Disponibilité Prix Genre Pièces Surface Étage
Voir
Disponible
1 210 200€ Appt. T4 87.41m2 0-RDC
Voir
Disponible
1 657 200€ Appt. T4 116.06m2 0-RDC
DO NOT CLICK