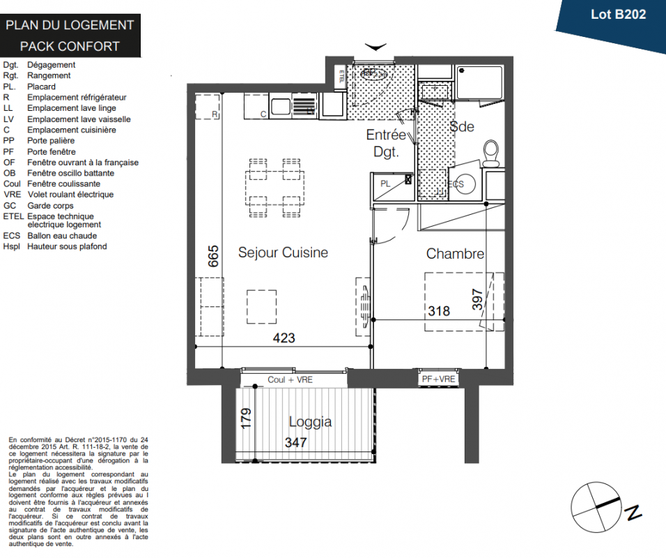
270 000€
Appt. au 2ème
T2
50.3 m²
Est
Sables-d'Olonne (85180)
1er trimestre 2025
01 81 80 39 10
Présentation du programme "Ephemer"
Idéalement situé, proche de toute commodité, à 500 m de la plage, le programme Ephémer est composé de 64 logements et d’un commerce alimentaire. Votre nouveau lieu de vie complètement intégré au sein d’un quartier résidentiel et cherché au cœur des Sables d’Olonne.Vous profiterez d’un cœur d’îlot pacifié, uniquement piétons avec des espaces verts, des jeux pour enfants et des lieux de partage conviviaux. Chaque logement dispose d’un espace extérieur privatif avec jardins, balcons ou loggia ainsi qu’à minima une place de parking aérien ou en sous-sol.Nous vous proposons un large choix de logements qui s’auront s’adapter à votre choix d’acquisition (occupant ou investisseur) :- T2 de 44 m2 à 55m2,- T3 de 60 m2 à 73 m2- T4 de 84 m2 à 92 m2Les Sables d'Olonne est une ville ouverte à 270° vers la mer. Haut lieu de la voile et de la plaisance et point de départ du mythique Vendée Globe ! Située sur le littoral vendéen, la station balnéaire est réputée pour sa plage de sable fin, ses paysages pittoresques : dunes, marais, forêt d'Olonne... et son ensoleillement privilégié. 25 km de littoral et de nombreuses activités (marchés, randonnées, sport de glisse, restaurants…) s’offrent à vous à 10 min à pied de votre logement dans la résidence Ephémer.
Autres logements T2 du programme "Ephemer"
| Disponibilité | Prix | No | Genre | Pièces | Surface | Étage | Disponibilité | Prix | ||
|---|---|---|---|---|---|---|---|---|---|---|
| Voir | Disponible | 275 000€ | D204 | Appt. | T2 | 53m2 | 2ème | Disponible | 275 000€ | Voir |
| Voir | Disponible | 264 000€ | E103 | Appt. | T2 | 44.15m2 | 1er | Disponible | 264 000€ | Voir |
| Voir | Disponible | 270 000€ | F202 | Appt. | T2 | 47.6m2 | 2ème | Disponible | 270 000€ | Voir |
| Voir | Disponible | 234 165€ | B202_LMNP | Appt. | T2 | 50.3m2 | 2ème | Disponible | 234 165€ | Voir |
| Voir | Disponible | 238 332€ | D204_LMNP | Appt. | T2 | 53m2 | 2ème | Disponible | 238 332€ | Voir |
| Voir | Disponible | 229 165€ | E103_LMNP | Appt. | T2 | 44.2m2 | 1er | Disponible | 229 165€ | Voir |
| Voir | Disponible | 234 165€ | F202_LMNP | Appt. | T2 | 47.6m2 | 2ème | Disponible | 234 165€ | Voir |

