Ce lot n’est plus disponible chez VIANOVA ou est vendu.

Vous pouvez revenir dans 24h pour vérifier le stock à jour ou contacter un conseiller Vianova pour vérifier le stock en direct.
Vous pouvez également continuer votre recherche sur notre site « ici ».

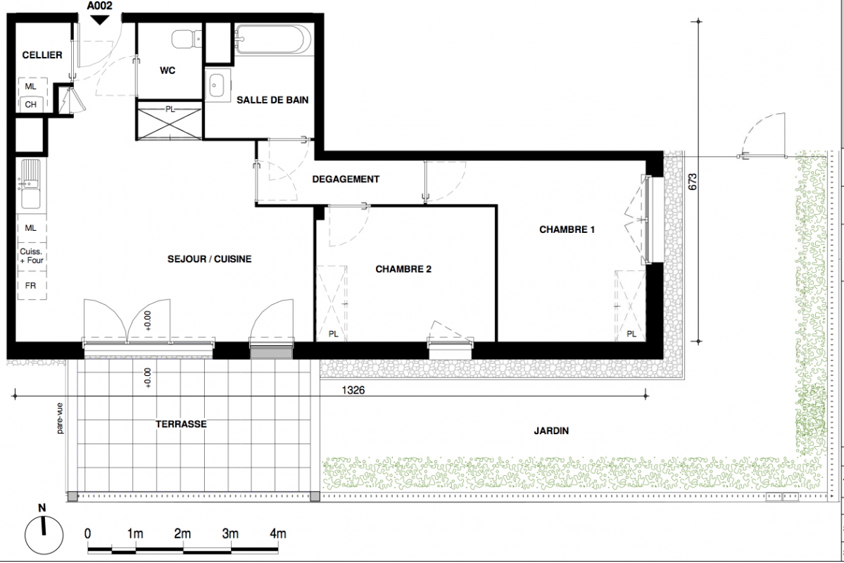
Prix
208 200€
Type
Appt. au 0-RDC
Pièces
T3
Surface
66.19 m²
Exposition
Sud
Ville
Herbiers (85500)
Livraison
-
Informations
01 81 80 39 10

Présentation du programme "RÉSIDENCE DU TRAMWAY"

Programme neuf LES HERBIERS (85500). Prenez contact avec Vianova pour plus d'informations!

Autres logements T3 du programme "RÉSIDENCE DU TRAMWAY"

Disponibilité Prix Genre Pièces Surface Étage
Voir
Optionné
239 500€ Appt. T3 65.71m2 1er
Voir
Optionné
211 800€ Appt. T3 65.69m2 2ème
DO NOT CLICK