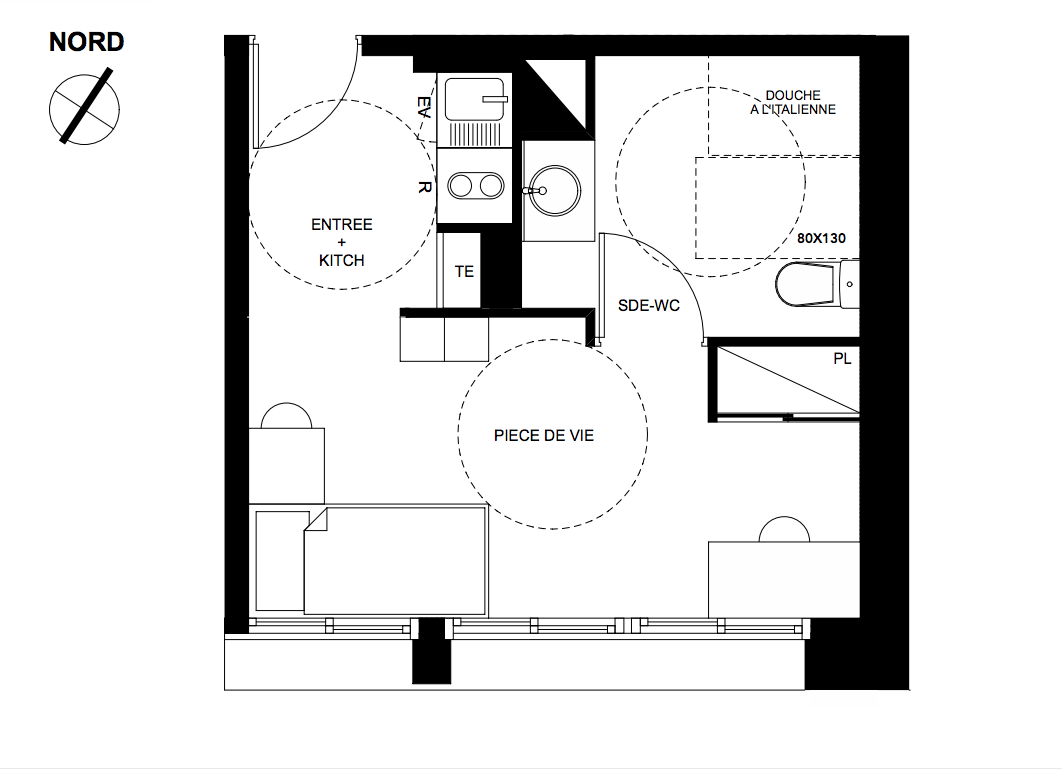
Appt. n°A3.04

Programme "RUBIK"
Prix
124 680€
Type
Appt. au 3ème
Pièces
Studio
Surface
20.34 m²
Exposition
Sud-Est
Ville
Le Mans (72000)
Livraison
3ème trimestre 2025
Informations
01 81 80 39 10

Présentation du programme "RUBIK"

La résidence RUBIK est une résidence étudiante à l’architecture graphique et colorée.
Elle est composée de 94 lots, répartis dans 2 bâtiments : un bâtiment existant sur rue qui sera réhabilité, et à l'arrière de celui-ci un bâtiment neuf sera créé. Située au pied des commerces et des restaurants, et à proximité de l’arrêt de tram et de bus, les étudiants bénéficient d’un cadre de vie optimal. La résidence offre des espaces communs conviviaux. Ils sont composés d’une grande pièce avec espace détente, espace game, cuisine collaborative, épicerie, ainsi qu'une salle de coworking, une salle de fitness et une laverie connectée.
Les espaces privés sont quant à eux entièrement meublés (fabrication française) et optimisés grâce aux nombreux rangements.
La résidence RUBIK offre un cadre convivial où les étudiants pourront s'épanouir sereinement, apprendre et partager.

Autres logements Studio du programme "RUBIK"

Disponibilité Prix Genre Pièces Surface Étage
Voir
Optionné
123 720€ Appt. Studio 20.3m2 4ème
DO NOT CLICK