367 600€
- €
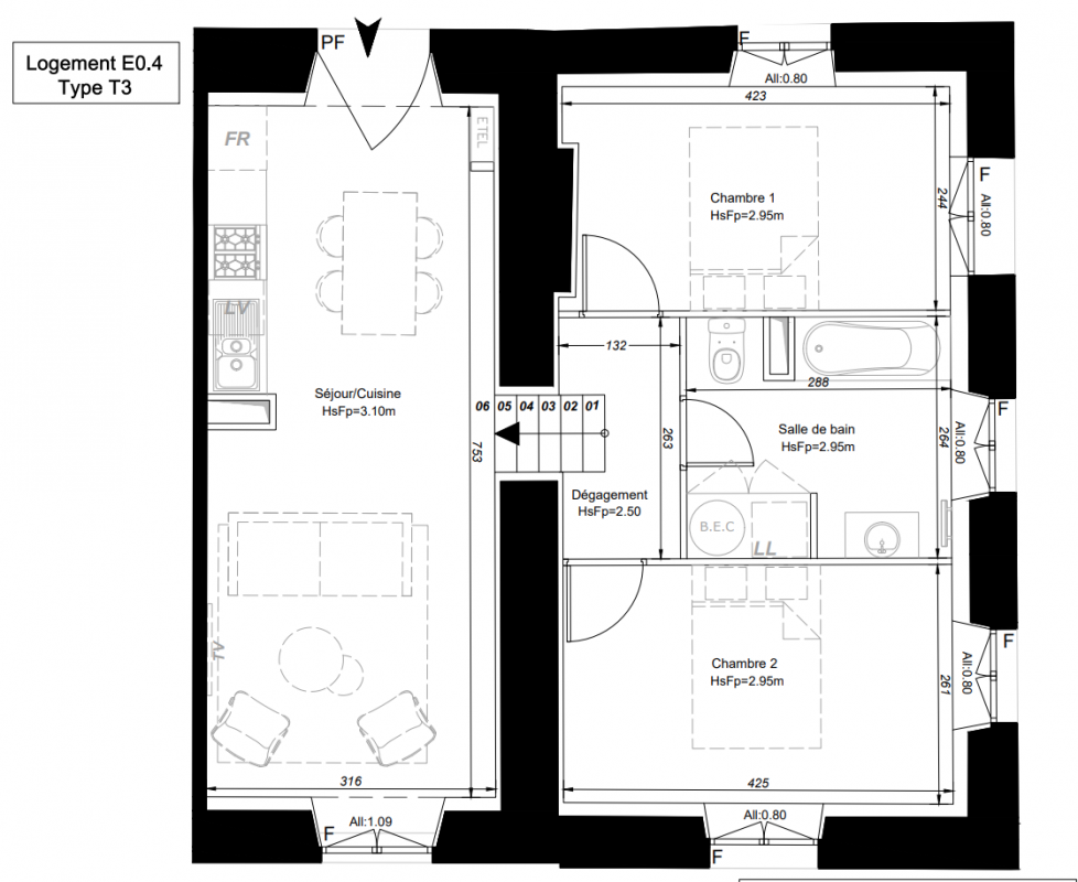
Appt. au 0-RDC
T3
55.8 m²
-
La Flèche (72200)
4ème trimestre 2026
01 81 80 39 10
Présentation du programme "COUVENT DE LA VISITATION"
Po^le touristique attractif de la valle´e du Loir, La Fle`che est ceinture´e par les aires d’influences de trois capitales re´gionales de premier ordre : Le Mans, Angers et Tours.
Attire´s par ses atouts e´conomiques et ses opportunite´s, les professionnels sont de plus en plus nombreux a` s’y installer, faisant de La Fle`che l’une des dix zones d’emplois les plus actives de France.
Re´habiliter le COUVENT DE LA VISITATION, c’est l’inscrire dans la nouvelle e´poque de l’aire urbaine de La Fle`che. Cette re´habilitation fait e´cho au projet des Capucins, e´galement situe´ rue Henri Dunant et qui pre´voit la construction d’une re´sidence se´nior et de nouveaux logements. C’est l’exemple concret de la transformation territoriale me´ne´e depuis la mise en place du plan Action Cœur de Ville.
Autres logements T3 du programme "COUVENT DE LA VISITATION"
| Disponibilité | Prix | No | Genre | Pièces | Surface | Étage | Disponibilité | Prix | ||
|---|---|---|---|---|---|---|---|---|---|---|
| Voir | Disponible | 402 000€ | A0.13 | Appt. | T3 | 53.95m2 | 0-RDC | Disponible | 402 000€ Prix foncier 17 300€ Prix travaux 372 700€ | Voir |
| Voir | Disponible | 410 200€ | E2.1 | Appt. | T3 | 60m2 | 2ème | Disponible | 410 200€ Prix foncier 19 200€ Prix travaux 379 000€ | Voir |