Prix
182 599€
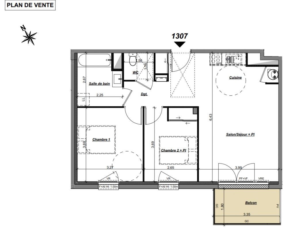
Type
Appt. au 3ème
Pièces
T3
Surface
61 m²
Exposition
Sud
Ville
Laval (53000)
Livraison
4ème trimestre 2027
Informations
01 81 80 39 10

Présentation du programme "MERIDIENNE"

A seulement 600 m du centre hospitalier, cette adresse bénéficie également de tous les services et commerces du quartier du Bourny dans un rayon de 800 m. Pour plus de calme, Méridienne est implantée très en retrait de l'avenue de l'Atlantique. Votre appartement de 2 ou 3 pièces, sera prolongé d'un balcon ou d'une terrasse avec jardin, avec vue directe sur l'espace paysager et ses arbres remarquables existants. En termes de confort et d'économies d'énergies, la résidence sera conforme à la Règlementation Environnementale en vigueur (RE 2020). Eligible à l'accession en Prêt à Taux 0%, Méridienne permet aussi de réaliser un investissement en LMNP non-gérée avec notre solution packs meublés.

Autres logements T3 du programme "MERIDIENNE"

Disponibilité Prix Genre Pièces Surface Étage
Voir
Disponible
181 683€ Appt. T3 61m2 2ème
Voir
Disponible
190 391€ Appt. T3 65m2 3ème
Voir
Disponible
179 849€ Appt. T3 63m2 2ème