Prix
332 000€
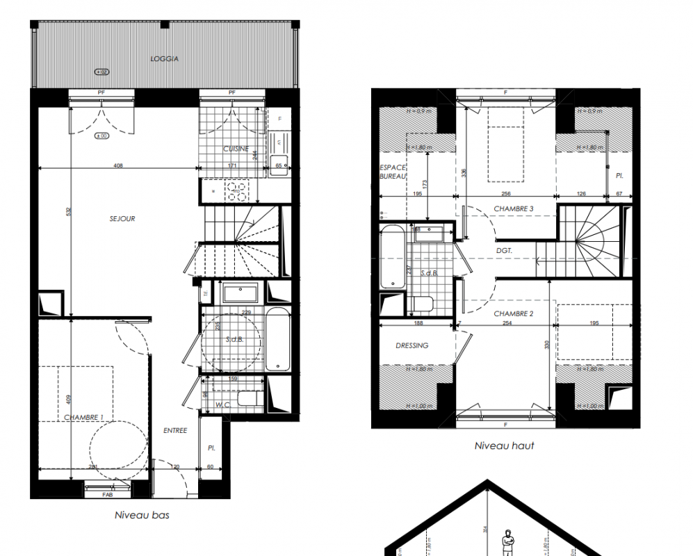
Type
Appt. au 2ème
Pièces
T4
Surface
82.74 m²
Exposition
Est
Ville
Laval (53000)
Livraison
3ème trimestre 2029
Informations
01 81 80 39 10

Présentation du programme "Cour St Mathurin"

Au cœur de Laval, une résidence chargée d’histoire
À quelques pas des rives de la Mayenne et de la place du 11 Novembre, découvrez une résidence inédite mêlant avec harmonie construction neuve et réhabilitation de bâtiments historiques. Dans cet environnement au patrimoine médiéval classé, découvrez le charme de l’ancien rénové avec des méthodes traditionnelles et écologiques et le confort écoresponsable d’une construction neuve à ossature bois. Du studio au 4 pièces, laissez-vous séduire par l’offre exclusive d’agencements et de plans, avec des appartements disposant de hauteur sous plafond exceptionnelles, jusqu’à 3,4 m. de plus ils peuvent vous faire bénéficier du dispositif « Denormandie »  Dans les bâtiments neufs, balcons et terrasses prolongent tous les intérieurs. Une adresse qui comblera les amateurs d’architecture noble, et qui profite de l’un des meilleurs emplacements de la ville. 

Autres logements T4 du programme "Cour St Mathurin"

Disponibilité Prix Genre Pièces Surface Étage
Voir
Disponible
330 000€ Appt. T4 82.62m2 2ème
Voir
Disponible
328 000€ Appt. T4 82.77m2 2ème
Voir
Disponible
344 000€ Appt. T4 82.14m2 2ème