Appt. n°LOB201

Programme "KENNEDY"
Prix
209 900€
Type
Appt. au 2ème
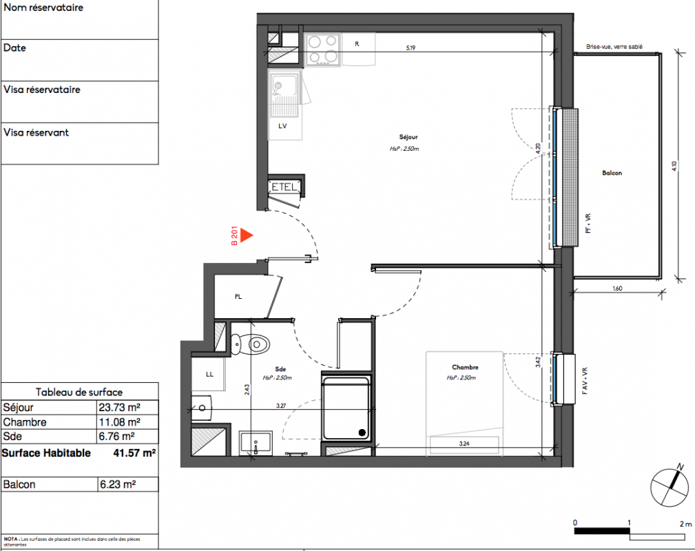
Pièces
T2
Surface
41.57 m²
Exposition
Est
Ville
Avrillé (49240)
Livraison
4ème trimestre 2026
Informations
01 81 80 39 10

Présentation du programme "KENNEDY"

Situé à Avrillé, au sein d'un quartier résidentiel recherché, découvrez KENNEDY, le nouveau programme réalisé par Vianova.
Entre vie urbaine et calme environnant, la résidence KENNEDY vous propose des appartements du studio au 4 pièces ou maisons 4/5 pièces prolongées par des espaces extérieurs généreux. Un coeur d'ilot végétalisé, particulièrement travaillé avec sa venelle piétonne, ses auvents collectifs et sa placette partagée, procure une ambiance "village" propice aux rencontres et la promenade.
De plus, les arrêts de tram et bus à proximité vous permettront de rejoindre le centre-ville d'Angers en quelques minutes. Avec la nature pour voisine, KENNEDY vous offre un cadre de vie paisible et agréable ; de quoi vous donner l'envie de vivre au sein de la fameuse Ville-Parc. ELIGIBLE PTZ *voir conditions en espace de vente

Autres logements T2 du programme "KENNEDY"

Disponibilité Prix Genre Pièces Surface Étage
Voir
Disponible
219 900€ Appt. T2 54.52m2 2ème
Voir
Disponible
214 900€ Appt. T2 54.52m2 1er
DO NOT CLICK