318 000€
Appt. au 3ème
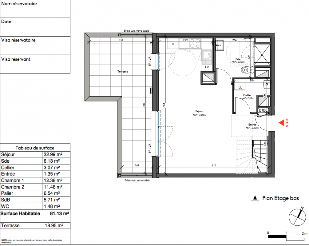
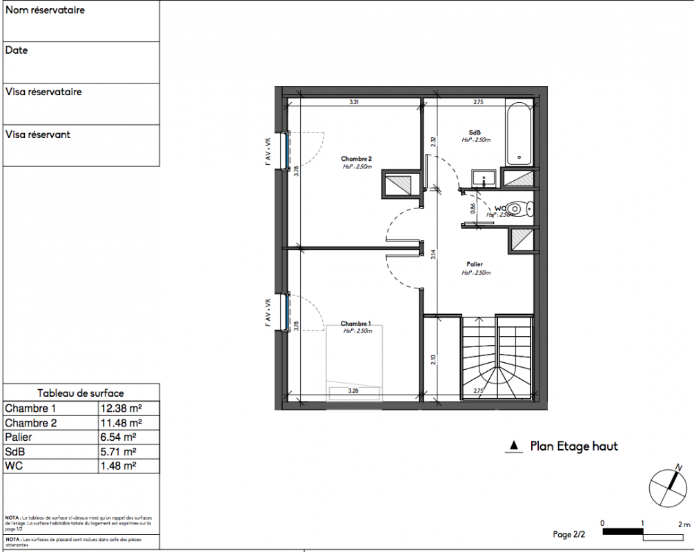
T3
81.13 m²
Ouest
Avrillé (49240)
4ème trimestre 2026
01 81 80 39 10
Présentation du programme "KENNEDY"
Situé à Avrillé, au sein d'un quartier résidentiel recherché, découvrez KENNEDY, le nouveau programme réalisé par Vianova.
Entre vie urbaine et calme environnant, la résidence KENNEDY vous propose des appartements du studio au 4 pièces ou maisons 4/5 pièces prolongées par des espaces extérieurs généreux. Un coeur d'ilot végétalisé, particulièrement travaillé avec sa venelle piétonne, ses auvents collectifs et sa placette partagée, procure une ambiance "village" propice aux rencontres et la promenade.
De plus, les arrêts de tram et bus à proximité vous permettront de rejoindre le centre-ville d'Angers en quelques minutes. Avec la nature pour voisine, KENNEDY vous offre un cadre de vie paisible et agréable ; de quoi vous donner l'envie de vivre au sein de la fameuse Ville-Parc. ELIGIBLE PTZ *voir conditions en espace de vente

