Prix
190 000€
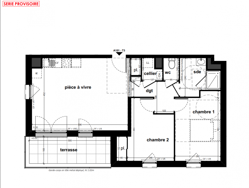
Type
Appt. au 1er
Pièces
T3
Surface
61.36 m²
Exposition
Ouest
Ville
Avrillé (49240)
Livraison
1er trimestre 2027
Informations
01 81 80 39 10

Présentation du programme "GREEN FOREST"

PRIX SPECIAL LANCEMENT + FRAIS DE NOTAIRE OFFERTS*

Situé rue Fernand Forest, dans un quartier calme et résidentiel d’Angers, GREEN FOREST vous offre un mode de vie apaisé à deux pas des commodités. À proximité du parc de l’Arboretum Gaston Allard, la résidence bénéficie d’un accès direct aux transports en commun et aux principaux points d’intérêt de la ville.

MAISONS INDIVIDUELLES 4 PIÈCES : Jusqu'à 93m², garage attenant et parking extérieur, jardin privatif, clos et paysager avec terrasse et abris de jardin. Chauffage via pompe à chaleur et normes RE2020 - confort thermique, économies d’énergie et respect de l'environnement.


APPARTEMENTS DU STUDIO AU 3 PIÈCES : Résidence à taille humaine de seulement 3 étages, balcons ou terrasses généreux - jusqu'à 40m² en dernier étage, stationnements pour chaque logement, logements RE 2020 seuil 2022 - confort thermique et économie d'énergie


ANGERS, UNE QUALITÉ DE VIE RECONNUE : À proximité du luxuriant parc de l’Arboretum Gaston Allard, la résidence GREEN FOREST s'inscrit dans un quartier résidentiel et dynamique abritant un large panel de commerces, restaurants, boulangeries et établissements scolaires. Très bien desservie par le réseau de transport en commun, la résidence se trouve à proximité de plusieurs arrêts de bus reliant le centre-ville en 20 minutes.

Classée parmi les villes les plus agréables à vivre en France, Angers séduit par son dynamisme, sa douceur de vivre et son patrimoine naturel et culturel.Située à 1h30 de Paris en train, la ville offre un cadre idéal pour les familles, les actifs comme les étudiants : réseau de transports efficace, pôles d’enseignement supérieur, offre culturelle riche, espaces verts, et bassin d’emploi attractif.

GREEN FOREST s’inscrit parfaitement dans cet esprit angevin : un habitat durable, paisible et bien intégré à son environnement.

? Contactez-moi pour un RDV :
?Christine ARHAY-LE MESTRE au 06 48 98 82 67
?arc49@groupearc.fr

*offre réservée aux 5 premiers acquéreurs hors frais d'acte de prêts et d'établissement de règlement de copropriété

Autres logements T3 du programme "GREEN FOREST"

Disponibilité Prix Genre Pièces Surface Étage
Voir
Disponible
190 000€ Appt. T3 61.31m2 2ème
Voir
Disponible
191 667€ Appt. T3 62.32m2 1er
Voir
Disponible
210 000€ Appt. T3 62.11m2 3ème
Voir
Disponible
220 000€ Appt. T3 61.65m2 3ème
Voir
Disponible
195 000€ Appt. T3 62.32m2 2ème
Voir
Disponible
193 333€ Appt. T3 61.91m2 2ème
DO NOT CLICK