Prix
159 900€
Type
Appt. au 1er
Pièces
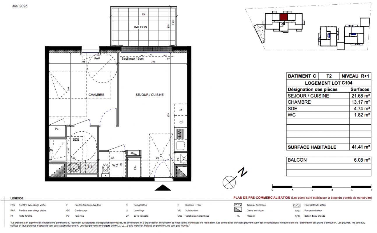
T2
Surface
41.41 m²
Exposition
-
Ville
Saint-Père-en-Retz (44320)
Livraison
4ème trimestre 2027
Informations
01 81 80 39 10

Présentation du programme "IMPULSION"

DEVENEZ PROPRIETAIRE DU 2 AU 4 PIECES A ST PERE EN RETZ : A 15 MIN** DE PORNIC !
Exemple de financement : votre 2 pièces à partir de 659,51€/mois*.

À seulement 15 minutes* de Pornic et 30 minutes* de Saint-Nazaire, Saint-Père-en-Retz offre un cadre de vie agréable entre campagne et littoral. La commune bénéficie d’un dynamisme économique grâce à ses entreprises industrielles, artisanales et agricoles, dont la Biscuiterie Saint-Michel, acteur local de l’emploi. Côté transports, le bus 301 à 7 minutes* à pied, permet de rejoindre Nantes en 1h10. Profitez d’une qualité de vie privilégiée tout en restant connecté aux grandes villes !
« IMPULSION » propose 23 appartements du 2 au 4 pièces, répartis sur un bâtiment de deux étages. Chaque logement dispose d’un balcon ou d’un jardin privatif engazonné, offrant un espace extérieur appréciable au quotidien. Un local à vélos ainsi qu’un local à ordures ménagères sont également prévus pour plus de praticité. De plus, des places de stationnement extérieures sont mises à disposition pour assurer un quotidien facilité aux résidents. « IMPULSION » s'inscrit dans le cadre de la Réglementation Environnementale RE2020, garantissant des normes exigeantes en matière de performance énergétique et de respect de l'environnement, pour offrir à ses habitants un cadre de vie harmonieux et durable. Fort de son savoir-faire de plus de 50 ans en immobilier résidentiel, European Homes réinvente une fois de plus la qualité de vie à Saint-Père-en-Retz.
Située rue de Blandeau, la résidence permet un accès rapide aux commodités essentielles. Les familles trouveront les écoles de la maternelle au lycée à moins de 10 minutes* à pied. Le centre commercial de l’Iliade se situe à seulement 2 minutes* en voiture, tandis que boulangerie et restaurants sont accessibles à pied en 5 minutes*. Pour les loisirs, profitez d’un complexe sportif, de clubs de football et de tennis à 7 minutes* à pied, ainsi que du Plan d’eau du Grand Fay à 15 minutes*, idéal pour la pêche, les promenades et les activités en plein air. À seulement 20 minutes* en voiture, la Grande Plage de Tharon vous offre un accès privilégié au littoral pour des moments de détente en bord de mer. Les services essentiels tels que la pharmacie, le cabinet médical et la mairie sont à 8 minutes* à pied.
Grâce au Prêt à Taux Zéro** en zone B1, augmentez votre capacité d’achat en bénéficiant d’un emprunt à taux 0 % pouvant atteindre jusqu’à 162 000 € soit maximum 50 % de l’achat d’un appartem

Autres logements T2 du programme "IMPULSION"

Disponibilité Prix Genre Pièces Surface Étage
Voir
Disponible
178 900€ Appt. T2 41.16m2 0-RDC
Voir
Disponible
175 900€ Appt. T2 41.16m2 2ème
Voir
Disponible
177 900€ Appt. T2 41.23m2 2ème
DO NOT CLICK