196 100€
Appt. au 3ème
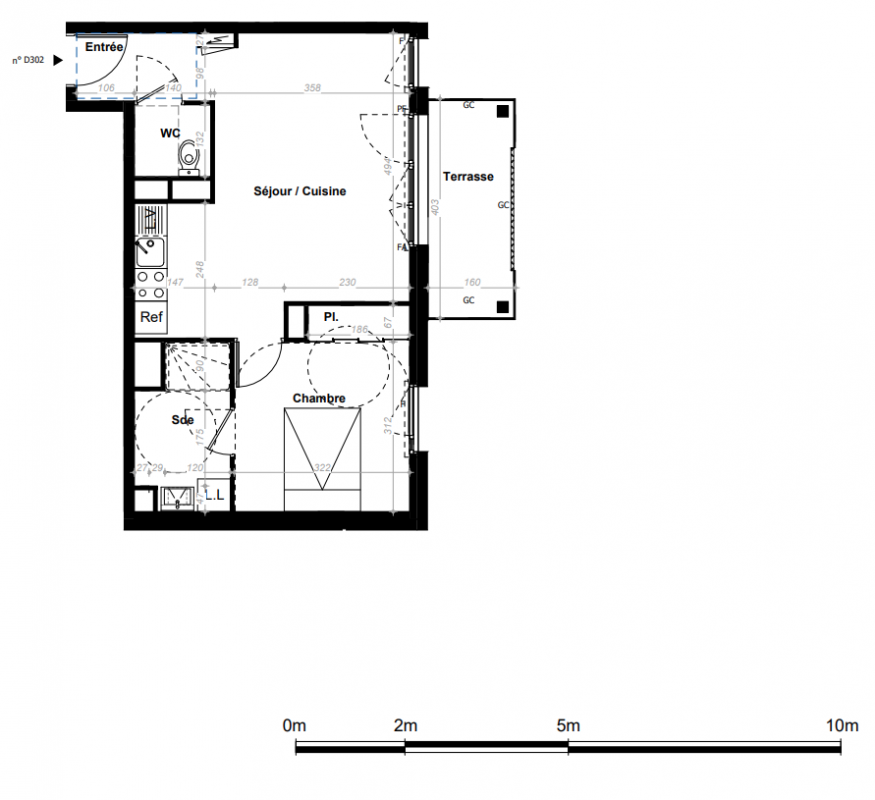
T2
43.09 m²
Sud
Orvault (44700)
3ème trimestre 2027
01 81 80 39 10
Présentation du programme "Programme neuf Orvault (44700)"
Achetez votre appartement neuf à Orvault et profiter de nos offres exceptionnelles du moment ! Le long de la route de Vannes, au coeur d'un ensemble de plusieurs bâtiments d'une grande variété architecturale, se trouve le futur poumon vert du quartier Néo à Orvault, où la nature s'illustre pleinement créant ainsi des zones de détente, de rencontre ou de jeux. Répondant parfaitement aux aspirations actuelles, les circulations douces ont pris le pas sur la voiture au travers de cheminements piétonniers et de pistes cyclables.Un large choix d'appartements, du 2 au 4 pièces s'offre à vous, tous prolongés par un balcon, un jardin privatif ou une magnifique terrasse aux vues exceptionnelles. Leurs surfaces intérieures profitent d'un maximum d'ensoleillement grâce à leurs orientations optimisées.Contactez vite un de nos conseillers pour découvrir tous nos logements neufs à Orvault et pour concrétiser votre projet immobilier neuf !
Autres logements T2 du programme "Programme neuf Orvault (44700)"
| Disponibilité | Prix | No | Genre | Pièces | Surface | Étage | Disponibilité | Prix | ||
|---|---|---|---|---|---|---|---|---|---|---|
| Voir | Disponible | 185 100€ | D303 | Appt. | T2 | 42.04m2 | 3ème | Disponible | 185 100€ | Voir |
| Voir | Disponible | 201 100€ | D402 | Appt. | T2 | 43.09m2 | 4ème | Disponible | 201 100€ | Voir |
| Voir | Optionné | 200 100€ | D502 | Appt. | T2 | 43.09m2 | 5ème | Optionné Mais pas encore vendu 😉 | 200 100€ | Voir |