Prix
263 759€
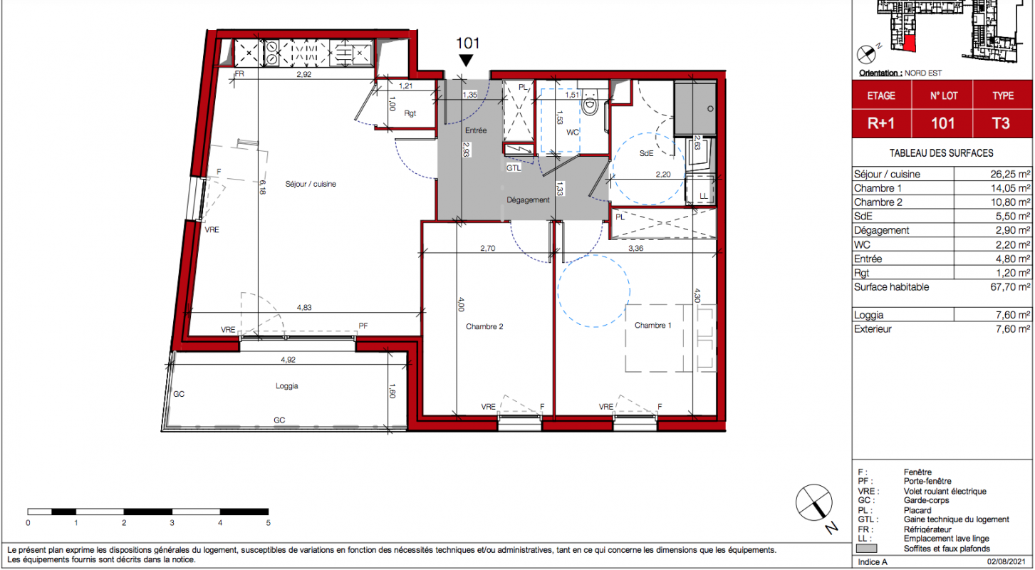
Type
Appt. au 1er
Pièces
T3
Surface
67 m²
Exposition
Nord-Est
Ville
Castres (81100)
Livraison
4ème trimestre 2026
Informations
01 81 80 39 10

Présentation du programme "LES HERBORISTES"

Idéal investisseur, Résidence Services Seniors au centre-ville de CastresInvestissez à Castres ! Nouvelle résidence services seniors Domitys LES HERBORISTES. 125 logements. Idéalement située à proximité des commerces, services et transports, cette résidence services seniors permet de bénéficier d'un environnement paisible et convivial. Elle proposera à ses occupants des services pour le confort et le plaisir au quotidien. Pour toute information complémentaire, prenez contact avec nous ! Pour toutes informations complémentaires, prenez contact avec nous !

Autres logements T3 du programme "LES HERBORISTES"

Disponibilité Prix Genre Pièces Surface Étage
Voir
Disponible
265 919€ Appt. T3 65m2 4ème
Voir
Disponible
263 759€ Appt. T3 64m2 3ème
Voir
Disponible
257 879€ Appt. T3 65m2 1er
Voir
Disponible
256 919€ Appt. T3 64m2 2ème
Voir
Disponible
256 799€ Appt. T3 63m2 2ème
Voir
Disponible
253 999€ Appt. T3 63m2 0-RDC
DO NOT CLICK