Prix
335 000€
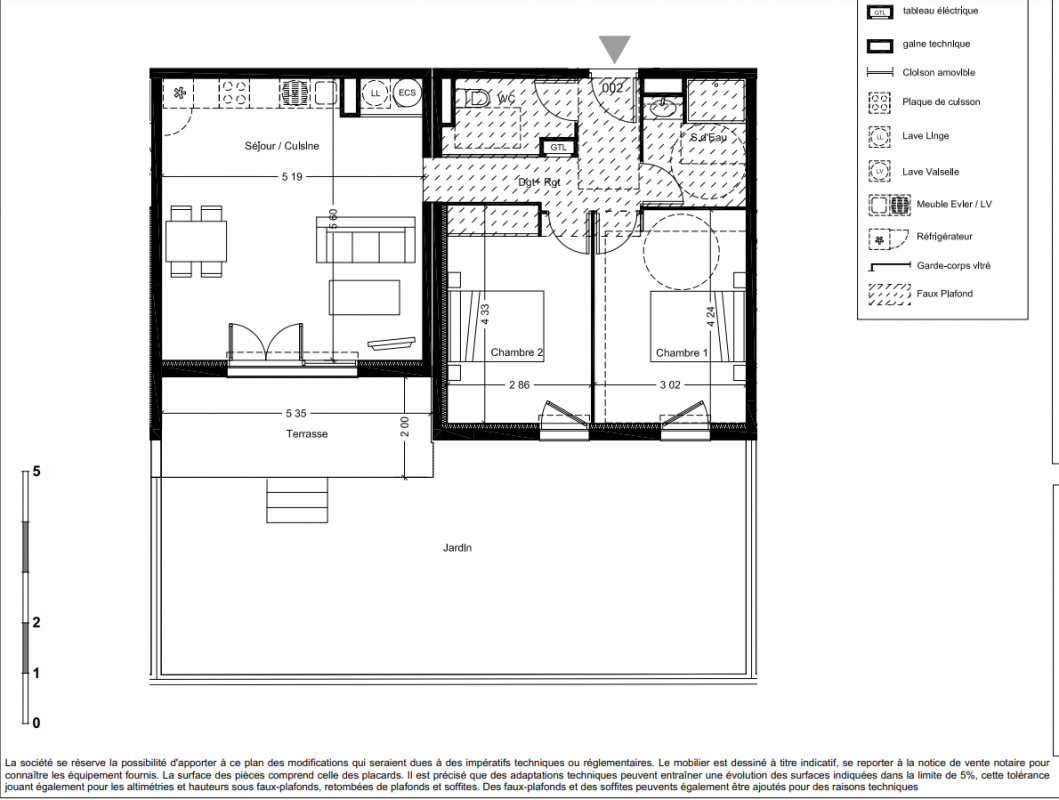
Type
Appt. au 0-RDC
Pièces
T3
Surface
68.5 m²
Exposition
-
Ville
Saint-Cyprien (66750)
Livraison
2ème trimestre 2027
Informations
01 81 80 39 10

Présentation du programme "BLUE GARDEN"

Rare à Saint-Cyprien Village, la résidence BLUE GARDEN, en co-promotion avec Marcel Foinneau, vous ouvre les portes d'un art de vivre paisible, entre nature, commerces et plages. Cette nouvelle adresse intimiste se compose de seulement 26 appartements du 2 au 4 pièces, conçus pour conjuguer confort, lumière et modernité.

Pensés comme de véritables lieux de vie, les appartements s'ouvrent sur de belles terrasses ensoleillées, balcons ou jardins privatifs, avec des espaces intérieurs généreux, aux volumes soigneusement étudiés.

Un cadre de vie privilégié
À deux pas du centre commerçant de Saint-Cyprien Village, BLUE GARDEN bénéficie d'un environnement calme et verdoyant, tout en restant à proximité immédiate :
- des plages de la Méditerranée,
- du golf international de Saint-Cyprien,
- du parc de la Prade,
- des équipements culturels et sportifs (piscine, médiathèque, tennis...).
Une situation idéale pour profiter pleinement de la douceur de vivre en Roussillon.

Autres logements T3 du programme "BLUE GARDEN"

Pas de logements disponibles