Ce lot n’est plus disponible chez VIANOVA ou est vendu.
Vous pouvez revenir dans 24h pour vérifier le stock à jour ou contacter un conseiller Vianova pour vérifier le stock en direct.
Vous pouvez également continuer votre recherche sur notre site « ici ».
Prix
215 200€
215 200€
Type
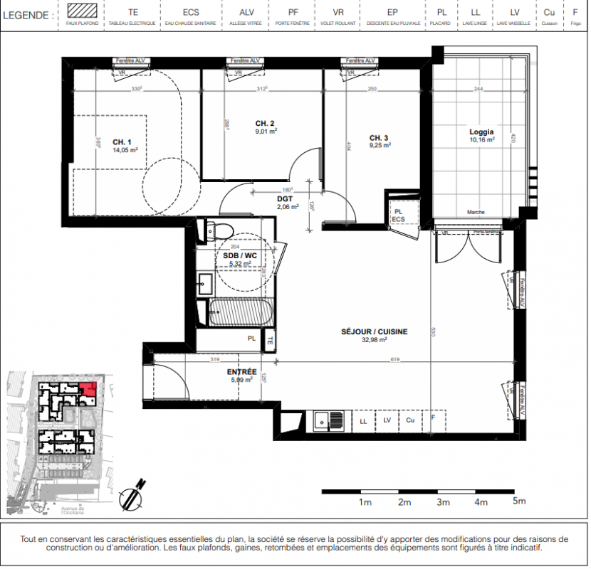
Appt. au 0-RDC
Appt. au 0-RDC
Pièces
T4
T4
Surface
77.76 m²
77.76 m²
Exposition
-
-
Ville
Saint-Georges-d'Orques (34680)
Saint-Georges-d'Orques (34680)
Livraison
4ème trimestre 2025
4ème trimestre 2025
Informations
01 81 80 39 10
01 81 80 39 10
Présentation du programme "LES ROCHES ROUGES II"
Secteur résidentiel composé de maisons individuelles et de petits collectifs. Commerces, services et écoles privées à moins de 3 mn à pied. À 600 m de la mairie et des commerces du centre de Saint-Georges-d¿Orques Domaines viticoles, centre équestre à moins de 2 km