Prix
146 645€  (TVA 20%)
128 925€  (TVA 5.5%)
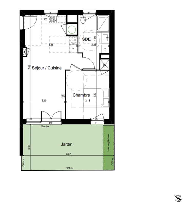
Type
Appt. au 0-RDC
Pièces
T2
Surface
45.64 m²
Exposition
-
Ville
Paulhan (34230)
Livraison
1er trimestre 2028
Informations
01 81 80 39 10

Présentation du programme "PAULIANUM"

Les villas disposent chacune d’un jardin privé, permettant de profiter d’un espace extérieur personnel pour des moments de détente en plein air. Les appartements sont dotés de terrasses spacieuses, idéales pour savourer le soleil et la douceur du climat méditerranéen en toutes saisons.

Autres logements T2 du programme "PAULIANUM"

Disponibilité Prix Genre Pièces Surface Étage
Voir
Disponible
146 645€ Appt. T2 44.49m2 0-RDC
Voir
Disponible
136 095€ Appt. T2 44.44m2 1er
Voir
Disponible
136 095€ Appt. T2 45.75m2 1er
DO NOT CLICK