Prix
90 200€
Type
Appt. au 0-RDC
Pièces
Studio
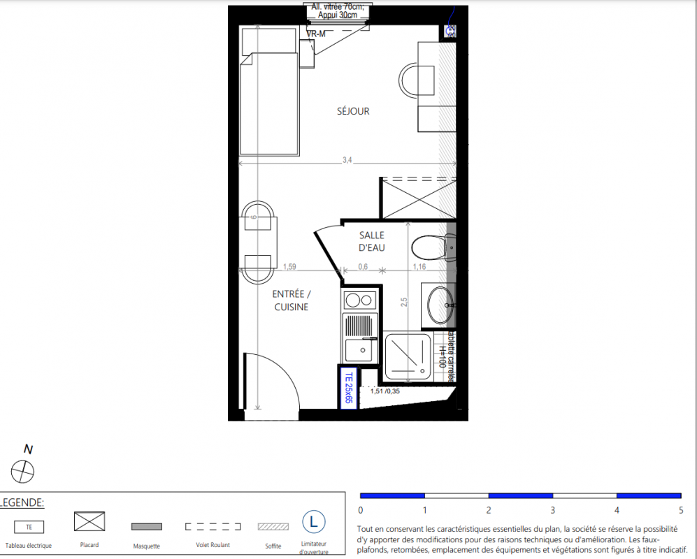
Surface
18.67 m²
Exposition
Nord
Ville
Montpellier (34000)
Livraison
1er trimestre 2025
Informations
01 81 80 39 10

Présentation du programme "Résidence Etudiante Maryse Bastié"

Descriptif résidenceUn investissement stratégique au cœur d’un pôle universitaire majeurLa résidence étudiante LOGIFAC Maryse Bastié, située 578 rue de Puech Villa – Montpellier, se trouve dans le quartier Euromédecine, l’un des secteurs les plus dynamiques et recherchés du nord de Montpellier.Ce quartier mêle équipements médicaux, écoles, espaces verts et transports structurants, garantissant un flux constant de demande étudiante.Un emplacement premium dans un quartier en pleine croissance : Quartier EuromédecineProximité du CHU de Montpellier, du Domaine d’O, du Parc Malbosc et de nombreux commerces.Secteur calme, moderne, très bien desservi, parfait pour les étudiants recherchant confort et sécurité.Au cœur du campus nord : un accès direct à de nombreuses écoles et universitésLa résidence bénéficie d’une proximité exceptionnelle avec les principaux pôles universitaires, ce qui en fait un placement à faible vacance locative.Universités et écoles accessibles à pied, vélo ou tram :Faculté de Médecine de Montpellier Université de Montpellier (campus St¿Priest / Sciences / Médecine) → à 7 minutes en vélo selon Revenu Pierre IUT de Montpellier ESICAD ARTFX (école d’effets spéciaux et d’animation) MyDigitalSchool (école digitale) EPSI (école informatique) Accessibilité : un atout majeur Grâce à un maillage de transports performant et un quartier structuré autour de la vie étudiante, la résidence offre :Accès rapide au centre-ville : 25 minutes en tramway ligne 1 Accès immédiat aux zones d’enseignement (entre 5 et 10 minutes en vélo)Commerces, loisirs, espaces verts à proximité immédiate Tramway ligne 1 à seulement 300 m de la résidenceLignes de bus 6 et 24 à 300 mGare SNCF à 6,2 km (35 minutes en tram)Une résidence récente, moderne et très recherchéeConstruite en 2023 : équipements modernes et normes actuelles145 logements (studios et T1 bis de 19 à 26 m²)Résidence neuve, sécurisée, avec services (coworking, laverie, jardin partagé…)Descriptif gestionnaireLOGIFAC, opérateur spécialisé du logement en résidences services étudiantes, est une marque du groupe OHLE, ancrée dans l’expertise de plus de 30 ans au service des étudiants et jeunes actifs.L’entreprise gère aujourd’hui plus de 40 résidences étudiantes idéalement situées à proximité des campus et des principaux centres urbains universitaires français.Son parc comprend environ 5 300 logements meublés et équipés, conçus pour répondre aux besoins d’autonomie, de confort et de sécurité des étudiants.L...

Autres logements Studio du programme "Résidence Etudiante Maryse Bastié"

Disponibilité Prix Genre Pièces Surface Étage
Voir
Disponible
87 300€ Appt. Studio 18.64m2 4ème
DO NOT CLICK