25 072€
372 080€
880€
372 080€
880€
Type
Appt. au 1er
Appt. au 1er
Pièces
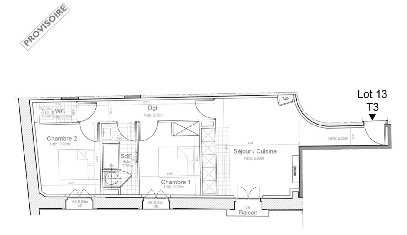
T3
T3
Surface
52.4 m²
52.4 m²
Exposition
Sud
Sud
Ville
Montpellier (34000)
Montpellier (34000)
Livraison
2ème trimestre 2026
2ème trimestre 2026
Informations
01 81 80 39 10
01 81 80 39 10
Présentation du programme "FAUBOURG DU COURREAU"
Autres logements T3 du programme "FAUBOURG DU COURREAU"
| Disponibilité | Prix | No | Genre | Pièces | Surface | Étage | Disponibilité | Prix | ||
|---|---|---|---|---|---|---|---|---|---|---|
| Voir | Optionné | 402 822€ | 14 | Appt. | T3 | 53.4m2 | 1er | Optionné Mais pas encore vendu 😉 | 402 822€ Prix foncier 25 442€ Prix travaux 377 380€ | Voir |
| Voir | Disponible | 440 856€ | 34 | Appt. | T3 | 57.2m2 | 3ème | Disponible | 440 856€ Prix foncier 28 516€ Prix travaux 412 340€ | Voir |