Prix
226 825€  (TVA 20%)
199 417€  (TVA 5.5%)
Type
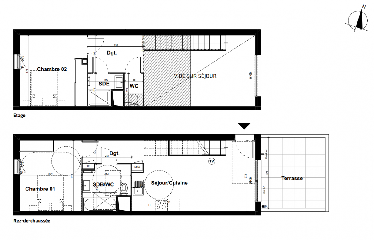
Appt. au 0-RDC
Pièces
T3
Surface
65.2 m²
Exposition
-
Ville
Montpellier (34000)
Livraison
4ème trimestre 2026
Informations
01 81 80 39 10

Présentation du programme "Bluenote BRS"

À l’angle des rues de Pinville et de Salaison, dans un écrin de verdure, la résidence Crescendo se distingue par son allure contemporaine. Avec un design soigné résolument moderne, elle dévoile des lignes épurées mises en lumière par des accords harmonieux de teintes et matières. Le volume s’étire sur 6 étages, alternant les pleins et les vides pour mieux rythmer les façades. Le dernier niveau est quant à lui travaillé en retrait, donnant à voir un esprit de maisons sur le toit. Son habillage en zinc blanc lui permet de se fondre dans le ciel.

Autres logements T3 du programme "Bluenote BRS"

Disponibilité Prix Genre Pièces Surface Étage
Voir
Optionné
245 815€ Appt. T3 67.3m2 0-RDC
Voir
Disponible
220 495€ Appt. T3 61m2 0-RDC
DO NOT CLICK