Prix
269 280€
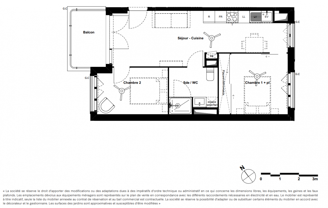
Type
Appt. au 1er
Pièces
T3
Surface
52.36 m²
Exposition
-
Ville
Saint-Jean (31240)
Livraison
4ème trimestre 2027
Informations
01 81 80 39 10

Présentation du programme "VILLA SERENLY ST JEAN"

La résidence Villa Serenly Saint-Jean propose un cadre de vie pensé pour le bien-être, la sécurité et le confort de ses résidents. Composée de 56 appartements T2 et T3, répartis dans un bâtiment en R+2, elle offre une atmosphère conviviale au sein d’une résidence à taille humaine, idéalement située à proximité des commerces et du lac.
Chaque logement, fonctionnel et lumineux, est doté d’aménagements adaptés pour garantir autonomie et sérénité au quotidien : cuisine équipée, rangements ergonomiques, salle d’eau sécurisée avec barre de maintien et siège de douche, prises à hauteur adaptée, volets roulants électriques et un espace extérieur privatif invitant à profiter des belles journées ensoleillées.
Afin de favoriser le lien social et la convivialité, la résidence met à disposition de ses habitants de nombreux espaces communs : salon détente, cuisine participative, bibliothèque, salle de fitness et espace bien-être.
À l’extérieur, les résidents peuvent partager des moments de plaisir autour du boulodrome, cultiver les bacs potagers ou se retrouver sur la terrasse commune. Chaque détail a été pensé pour offrir un environnement sécurisé, stimulant et chaleureux.

Autres logements T3 du programme "VILLA SERENLY ST JEAN"

Disponibilité Prix Genre Pièces Surface Étage
Voir
Disponible
271 920€ Appt. T3 52.36m2 2ème
DO NOT CLICK