95 700€
Appt. au 0-RDC
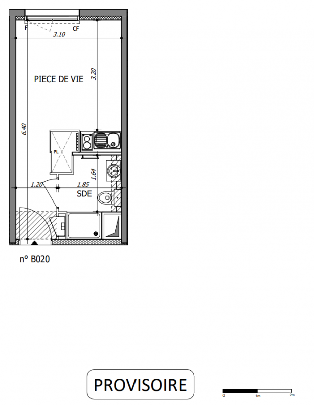
Studio
18.78 m²
Ouest
Alès (30100)
2ème trimestre 2027
01 81 80 39 10
Présentation du programme "Programme neuf Alès (30100)"
Investissez dans notre nouvelle résidence étudiante Urbaneo Les Mines – Alès Alès et bénéficiez des avantages du LMNP avec une rentabilité de 6% par an ! Idéalement située à quelques minutes à pied de l'École des Mines d'Alès, Urbaneo – Les Mines offre un cadre de vie adapté aux besoins des étudiants et des jeunes actifs, alliant confort, sécurité et convivialité. Notre nouvelle résidence est à proximité immédiate d’une supérette et d’un primeur accessibles directement à pied, ainsi que de la gare d'Alès, située à seulement 5 min* à vélo, permettant des déplacements rapides et pratiques. Les transports en commun desservent efficacement les différents quartiers de la ville avec notamment de nombreux arrêts de bus dans les alentours, garantissant un accès facile aux établissements scolaires et universitaires ainsi qu'aux espaces de loisirs.La résidence propose des appartements fonctionnels allant du studio au 2 pièces, dont certains disposent d'un balcon. Conçus pour optimiser l'espace de vie, nos logements offrent un cadre confortable et pratique, parfaitement adapté aux exigences des étudiants. Pour assurer bien-être et sérénité, la résidence est entièrement fermée et sécurisée.Urbaneo met à disposition de ses résidents un gardien assurant une présence rassurante, une laverie en libre-service, un local à vélos sécurisé, une salle de coworking propice au travail, un espace arboré pour se détendre, ainsi qu'une terrasse commune pour partager des moments conviviaux.Inscrivez-vous sans plus attendre pour être les premiers informés de notre lancement commercial !
Autres logements Studio du programme "Programme neuf Alès (30100)"
Disponibilité | Prix | No | Genre | Pièces | Surface | Étage | Disponibilité | Prix | ||
---|---|---|---|---|---|---|---|---|---|---|
Voir | Disponible | 103 900€ | A012 | Appt. | Studio | 18.78m2 | 0-RDC | Disponible | 103 900€ | Voir |
Voir | Disponible | 124 200€ | A125 | Appt. | Studio | 24.02m2 | 1er | Disponible | 124 200€ | Voir |
Voir | Optionné | 106 500€ | A219 | Appt. | Studio | 18.78m2 | 2ème | Optionné Mais pas encore vendu 😉 | 106 500€ | Voir |
Voir | Disponible | 114 400€ | B009 | Appt. | Studio | 20.93m2 | 0-RDC | Disponible | 114 400€ | Voir |
Voir | Disponible | 103 800€ | B010 | Appt. | Studio | 20.93m2 | 0-RDC | Disponible | 103 800€ | Voir |
Voir | Disponible | 100 900€ | B015 | Appt. | Studio | 18.78m2 | 0-RDC | Disponible | 100 900€ | Voir |
Voir | Disponible | 100 900€ | B019 | Appt. | Studio | 18.78m2 | 0-RDC | Disponible | 100 900€ | Voir |
Voir | Disponible | 100 900€ | B022 | Appt. | Studio | 18.72m2 | 0-RDC | Disponible | 100 900€ | Voir |
Voir | Disponible | 116 400€ | BR01 | Appt. | Studio | 26.79m2 | 0-RDC | Disponible | 116 400€ | Voir |
Voir | Disponible | 109 100€ | BR06 | Appt. | Studio | 18.78m2 | 0-RDC | Disponible | 109 100€ | Voir |
Voir | Disponible | 106 500€ | BR25 | Appt. | Studio | 18.78m2 | 0-RDC | Disponible | 106 500€ | Voir |
Voir | Disponible | 118 300€ | BR26 | Appt. | Studio | 27.93m2 | 0-RDC | Disponible | 118 300€ | Voir |
Voir | Disponible | 109 100€ | A221 | Appt. | Studio | 18.78m2 | 2ème | Disponible | 109 100€ | Voir |
Voir | Disponible | 128 100€ | A225 | Appt. | Studio | 24.02m2 | 2ème | Disponible | 128 100€ | Voir |