175 900€
Appt. au 1er
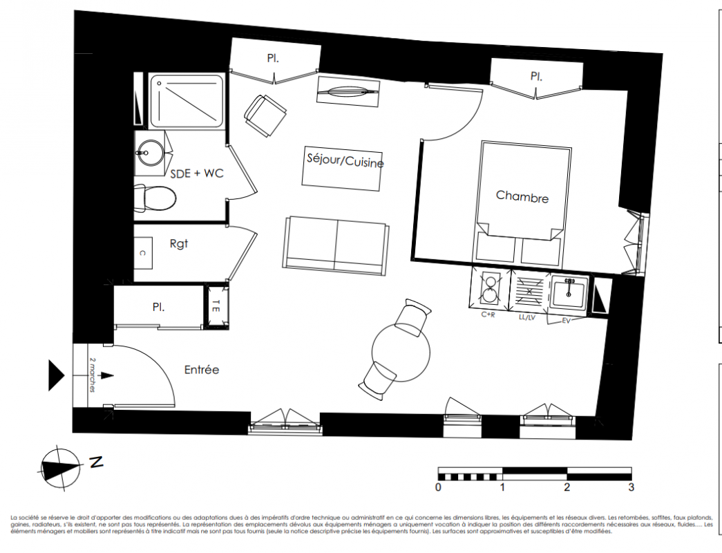
T2
39.28 m²
-
Châtellerault (86100)
4ème trimestre 2027
01 81 80 39 10
Présentation du programme "COUR DUPLEIX"
COUR DUPLEIX est le résultat d’une restauration complète d’un ensemble immobilier comprenant la quicaillerie Quillet, des boutiques, des bureaux, des logements et des garages.
Cette nouvelle résidence transforme l’existant en 39 logements du T1 au T3 répartis dans 4 bâtiments en R+1 et R+3, ainsi qu’un commerce au pied de l’immeuble Place Dupleix, à la place de l’ancienne Quincaillerie Quillet.
La façade côté Place Dupleix est remarquable et raffinée, lisible d’une part au niveau de la devanture de la quincaillerie avec les éléments du passé précieusement conservés, et d’autre part sur l’ornementation des étages sous la forme de deux pilastres encadrant la façade et soutenant une corniche, autour desquels s’enroule de la végétation et des animaux. Imprégné des empreintes du passé, ce lieu mêle harmonieusement authenticité et modernité.
La pierre, matériau noble par excellence, confère un caractère et une sensation de pérennité. En préservant l’âme du bâti existant, les appartements de COUR DUPLEIX proposent des prestations, de qualité tout en améliorant la performance énergétique des logements, perpétuant une histoire riche de près d’un siècle.
Une attention particulière est apportée au réemploi et à la valorisation des éléments patrimoniaux. Le confort moderne s’intègre avec finesse dans chaque appartement, enrichi par le charme unique de l’ancien qui lui confère une âme intemporelle.
Une jolie petite cour intérieure intimiste est proposée à l’arrière du projet.
Autres logements T2 du programme "COUR DUPLEIX"
| Disponibilité | Prix | No | Genre | Pièces | Surface | Étage | Disponibilité | Prix | ||
|---|---|---|---|---|---|---|---|---|---|---|
| Voir | Disponible | 171 900€ | B0.02 | Appt. | T2 | 37.1m2 | 0-RDC | Disponible | 171 900€ | Voir |
| Voir | Disponible | 174 900€ | C0.01 | Appt. | T2 | 37.18m2 | 0-RDC | Disponible | 174 900€ | Voir |
| Voir | Disponible | 175 900€ | C1.01 | Appt. | T2 | 37.45m2 | 1er | Disponible | 175 900€ | Voir |
| Voir | Disponible | 163 900€ | C2.01 | Appt. | T2 | 33.3m2 | 2ème | Disponible | 163 900€ | Voir |
| Voir | Disponible | 189 900€ | D0.01 | Appt. | T2 | 41.59m2 | 0-RDC | Disponible | 189 900€ | Voir |
| Voir | Disponible | 169 900€ | A1.03 | Appt. | T2 | 37.16m2 | 1er | Disponible | 169 900€ | Voir |
| Voir | Disponible | 174 900€ | D1.02 | Appt. | T2 | 41.38m2 | 1er | Disponible | 174 900€ | Voir |