Prix
162 477€
Type
Appt. au 3ème
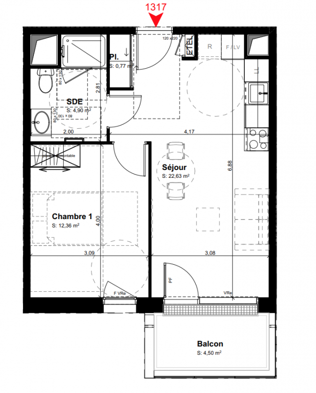
Pièces
T2
Surface
40 m²
Exposition
Sud
Ville
Buxerolles (86180)
Livraison
4ème trimestre 2026
Informations
01 81 80 39 10

Présentation du programme "Dolce Vita Residence Seniors"

À proximité immédiate du centre-ville, la Résidence Services Seniors gérée "Dolce Vita" est donc idéalement située. Les appartements de 2 pièces ont été pensés pour un confort optimal des résidents, avec notamment un espace extérieur privatif pour chacun ainsi que du mobilier adapté seniors. La résidence propose de nombreux espaces communs (salles de détente, fitness...) et des services gérés par Serenly, pour agrémenter et sécuriser le quotidien (animations, services connectés...) Dolce Vita offre la possibilité d'un investissement avec une rentabilité moyenne de 4% en LMNP ainsi que la récupération des 20 % de TVA grâce à son statut de résidence gérée.

Autres logements T2 du programme "Dolce Vita Residence Seniors"

Disponibilité Prix Genre Pièces Surface Étage
Voir
Disponible
170 149€ Appt. T2 42m2 3ème
Voir
Disponible
163 915€ Appt. T2 41m2 2ème
Voir
Disponible
167 991€ Appt. T2 42m2 2ème