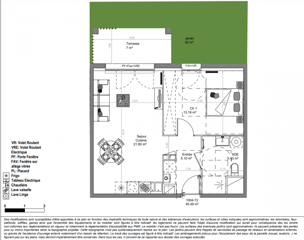
Prix
135 000€
Type
Appt. au 0-RDC
Pièces
T2
Surface
45 m²
Exposition
Nord-Ouest
Ville
Couzeix (87270)
Livraison
2ème trimestre 2026
Informations
01 81 80 39 10

Présentation du programme "Le 153"

Découvrez notre nouvelle réalisation Le 153 à Couzeix. A proximité de toutes les commodités, ce projet résidentiel sécurisé aux belles prestations, propose des appartements du 2 au 4 pièces, offrant tout le confort de l'immobilier neuf.

Autres logements T2 du programme "Le 153"

Pas de logements disponibles
DO NOT CLICK