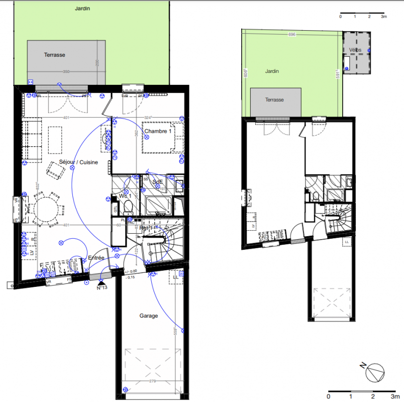
Prix
495 000€
495 000€
Type
Appt. au 0-RDC
Appt. au 0-RDC
Pièces
T5
T5
Surface
107.78 m²
107.78 m²
Exposition
-
-
Ville
Villenave-d'Ornon (33140)
Villenave-d'Ornon (33140)
Livraison
1er trimestre 2026
1er trimestre 2026
Informations
01 81 80 39 10
01 81 80 39 10
Présentation du programme "Nuances - VILLENAVE D'ORNON"
Au coeur d'un quartier pavillonnaire calme, découvrez en exclusivité le nouveau programme de maisons Vianova ! Bien située, proche de toutes les commodités, cette nouvelle adresse offre un cadre de vie privilégié, idéal pour une vie de famille épanouie. Abordant une architecture contemporaine les maisons, parfaitement intégrées dans leur environnement, se déclinent du 3 au 5 pièces avec jardin et garage pour certaines. Renseignez-vous dès maintenant pour être informé en avant-première et achetez votre maison neuve en plein propriété !