Prix
464 000€
Type
Appt. au 2ème
Pièces
-
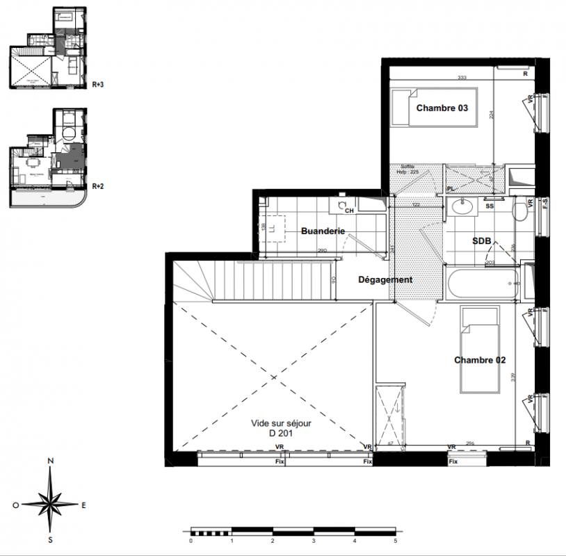
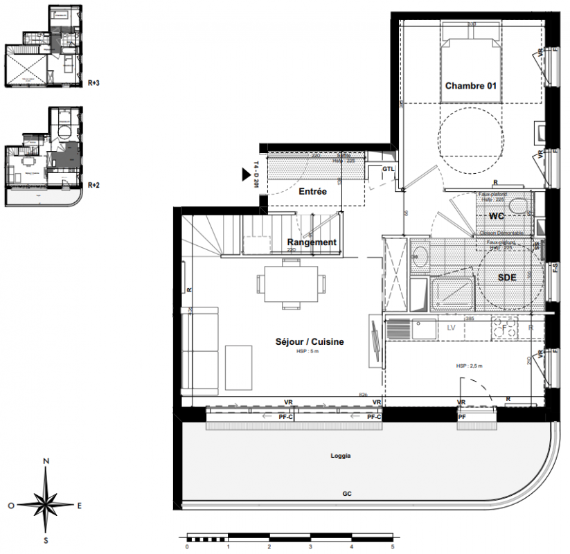
Surface
86.5 m²
Exposition
Est
Ville
Pessac (33600)
Livraison
4ème trimestre 2024
Informations
01 81 80 39 10

Présentation du programme "Les Jardins de Célan"

Dans le quartier Sardines à Pessac – Découvrez Les Jardins de Célan – Dans un environnement calme et résidentiel, Vianova vous propose une résidence de standing lovée dans un espace verdoyant. En lisière de la coulée verte, la résidence est idéalement située à proximité immédiate de l’école Edouard Herriot (Crèche, maternelle, primaire), du collège Gérard Philipe et de l’Université Bordeaux Montaigne. Aussi vous pourrez rejoindre le tram B en moins de 5 minutes à pied avec les arrêts « Bougnard » et « Camponac Médiathèque ». Enfin, vous pourrez accéder au centre de Pessac et ses commerces en 10 minutes à pied, et d’apprécier cette ville tant désirée dans le bassin bordelais ! Eligible loi PINEL - Zone B1Conçut pour offrir le meilleur confort, les appartements, allant du T2 au T5 duplex proposent tous un espace extérieur : Loggias, terrasses et des jardins privatifs. Vous pourrez ainsi apprécier pleinement la quiétude du cœur d’ilot arboré. Aussi, les appartements sont tous dotées de surfaces généreuses et de prestations de qualités; les intérieurs lumineux ont été dessinés afin de favoriser l’harmonie avec la végétation environnante. Vous profiterez ici d’une vie sereine entre ville et parc, dans la ville recherchée de Pessac.

Autres logements - du programme "Les Jardins de Célan"

Disponibilité Prix Genre Pièces Surface Étage
Voir
Disponible
551 000€ Appt. - 101.1m2 0-RDC