Ce lot n’est plus disponible chez VIANOVA ou est vendu.

Vous pouvez revenir dans 24h pour vérifier le stock à jour ou contacter un conseiller Vianova pour vérifier le stock en direct.
Vous pouvez également continuer votre recherche sur notre site « ici ».

Prix
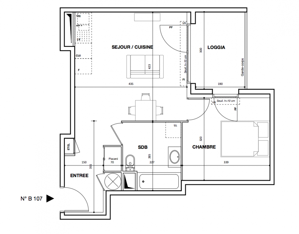
182 000€
Type
Appt. au 1er
Pièces
T2
Surface
41.37 m²
Exposition
-
Ville
Marcheprime (33380)
Livraison
3ème trimestre 2027
Informations
01 81 80 39 10

Présentation du programme "LA HUSTA"

A Marcheprime, entre Bordeaux et Arcachon, laissez-vous séduire par cette résidence neuve à l’architecture landaise proposant des appartements du studio au 3 pièces, tous prolongés par un balcon ombragé ou un jardin. Couleurs locales et toitures en tuiles, la résidence s’intègre parfaitement dans son décor très naturel, à seulement 10 min* à pied de la gare SNCF. Une adresse de charme, idéale pour habiter au cœur du Parc naturel des Landes.

En co-promotion avec Crédit Agrcole Immobilier.

Autres logements T2 du programme "LA HUSTA"

Pas de logements disponibles
DO NOT CLICK