Ce lot n’est plus disponible chez VIANOVA ou est vendu.

Vous pouvez revenir dans 24h pour vérifier le stock à jour ou contacter un conseiller Vianova pour vérifier le stock en direct.
Vous pouvez également continuer votre recherche sur notre site « ici ».

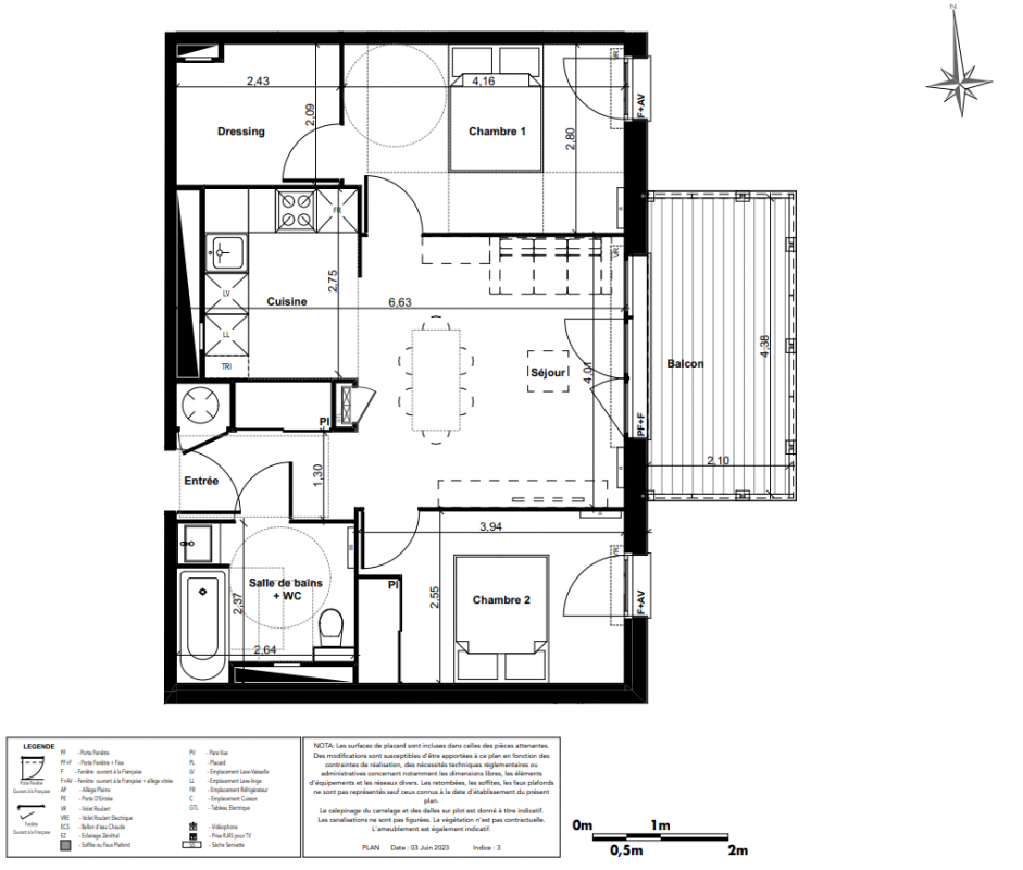
Prix
332 000€
Type
Appt. au 1er
Pièces
T3
Surface
58.85 m²
Exposition
-
Ville
Gujan-Mestras (33470)
Livraison
2ème trimestre 2026
Informations
01 81 80 39 10

Présentation du programme "Clos Pasteur"

HABITER OU INVESTIR AU COEUR DU BASSIN D'ARCACHONGUJAN-MESTRAS S'OFFRE À VOUS Réputée pour ses 7 ports et l’excellence de ses produits, Gujan-Mestras cultive un art de vivre authentique et préservé. Ici, il fait bon se ressourcer sur la plage de sable fin bordée de tamaris ou le long de son littoral paisible entre Bassin et prés salés. En vélo ou à pied, on aime flâner le long des ports pittoresques, s’accorder le temps de déguster les fruits de mer des jolies cabanes ostréicoles, et se délecter en toutes saisons d’atmosphères uniques entre mer et forêt... UNE ADRESSE IDÉALE AU CENTRE DE GUJAN-MESTRASSituée sur la place de la mairie et de son parc, la résidence Clos Pasteur rayonne. Les habitants apprécieront la simplicité d’une vie au coeur du centre-ville, entre convivialité et quiétude. Au quotidien nul besoin de voiture. Commerces et services se situent à distance piétonne ou à quelques minutes de vélo. Facile d’accès et proche de toutes vos envies, cette adresse participe à une qualité de vie qui vous invite à la détente en famille ou entre amis. APPARTEMENTS NEUFS DU 2 AU 4 PIECES Des appartements placés sous le signe du bien-êtreÉloge du plaisir de vivre en extérieur, les généreux balcons animent les volumes tels de larges galeries en seconde peau. Ornées de colonnades et d’arcs cintrés, ces extérieurs évoquent avec subtilité les somptueuses demeures de La Nouvelle-Orléans.Le confort dans les détails Crédit Agricole Immobilier et Juste Promotion ont conçu ces appartements pour vous garantir un bien-être durable. Les aménagements fluides et les volumes généreux des pièces correspondent aux attentes les plus exigeantes en matière de confort. Les orientations font la part belle à la clarté naturelle pour composer des intérieurs lumineux et chaleureux. Les prestations scrupuleusement sélectionnées conjuguent qualité et élégance pour s’accorder en harmonie à votre décoration personnelle. VOTRE PROJET MÉRITE UNE DOUBLE ATTENTIONPromoteur national depuis plus de 25 ans, Crédit Agricole Immobilier vous propose, en tant qu'expert de la promotion immobilière, la résidence Clos Pasteur située à Gujan-Mestras. N'hésitez pas à nous contacter pour votre projet de résidence principale ou d'investissement locatif en VEFA sur le Bassin d'Arcachon. Juste Promotion a été fondée avec une seule mission : bâtir des structures résidentielles fidèles à leur environnement et durables. Notre équipe de professionnels évalue soigneusement nos projets...

Autres logements T3 du programme "Clos Pasteur"

Pas de logements disponibles