Prix
253 300€
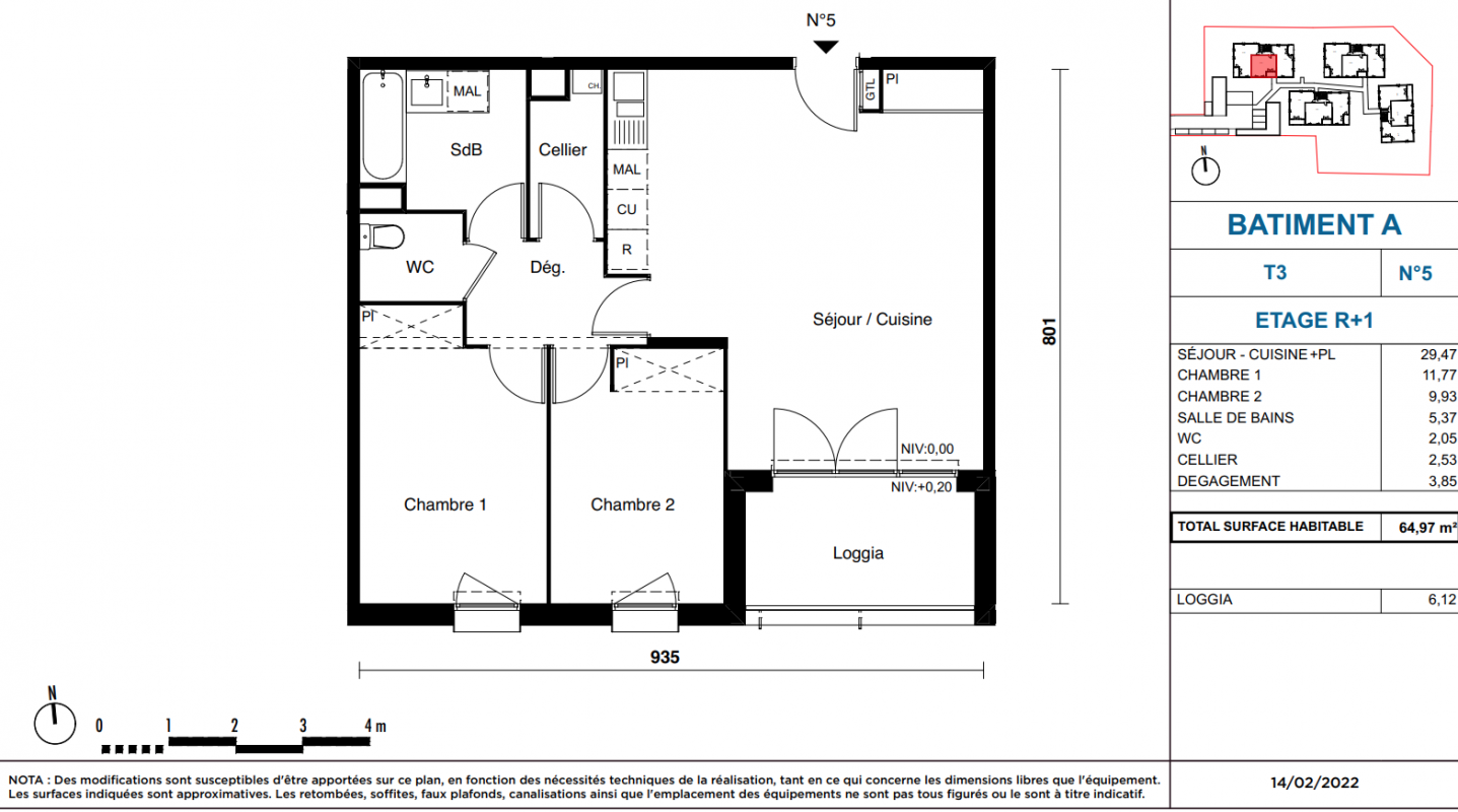
Type
Appt. au 1er
Pièces
T3
Surface
64.97 m²
Exposition
Sud
Ville
Carbon-Blanc (33560)
Livraison
4ème trimestre 2026
Informations
01 81 80 39 10

Présentation du programme "L'ÉCRIN BLANC"

Programme neuf CARBON-BLANC (33560). Prenez contact avec Vianova pour plus d'informations!

Autres logements T3 du programme "L'ÉCRIN BLANC"

Disponibilité Prix Genre Pièces Surface Étage
Voir
Disponible
269 800€ Appt. T3 67.15m2 1er
DO NOT CLICK