Prix
377 500€  (TVA 20%)
331 885€  (TVA 5.5%)
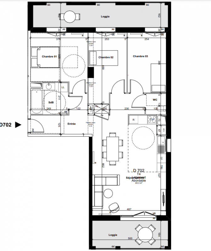
Type
Appt. au 7ème
Pièces
T4
Surface
83.4 m²
Exposition
Est
Ville
Bordeaux (33000)
Livraison
4ème trimestre 2026
Informations
01 81 80 39 10

Présentation du programme "Programme neuf Bordeaux (33000)"

Inscrivez-vous à nos Journées Portes Ouvertes le vendredi 24 & le samedi 25 avril à Bordeaux, face au jardin de l'Ars ! Dernier ouvrage qui parachève cette nouvelle centralité emblématique à Bordeaux, à proximité immédiate des quais réaménagés de la Garonne, du boulevard Jean-Jacques Bosc et du futur Pont Simone Veil, aux portes du centre-ville historique de Bordeaux et à 10 min. à pied de la gare Saint-Jean, découvrez notre nouvelle résidence aux usages mixtes, qui propose des appartements neufs déclinés du 2 au 4 pièces.Vues dégagées vers l'horizon et sur les 8 hectares du Jardin de l'Ars, le nouveau poumon vert de la rive gauche de Bordeaux, cette adresse de qualité promet d'offrir à tous un cadre de vie équilibré, vivant, intense et éducatif.La résidence séduit par ses lignes architecturales singulières et modernes et s'intègre parfaitement dans ce nouvel environnement. Les appartements s'ouvrent tous sur une vaste loggia offrant de belles vues dégagées. Certains profitent d'une double voire triple orientation pour assurer une belle luminosité toute l'année.Contactez-vite un de nos conseillers pour découvrir tous nos logements neufs à Bordeaux et concrétiser votre projet immobilier !

Autres logements T4 du programme "Programme neuf Bordeaux (33000)"

Disponibilité Prix Genre Pièces Surface Étage
Voir
Disponible
385 200€ Appt. T4 82.2m2 9ème
DO NOT CLICK