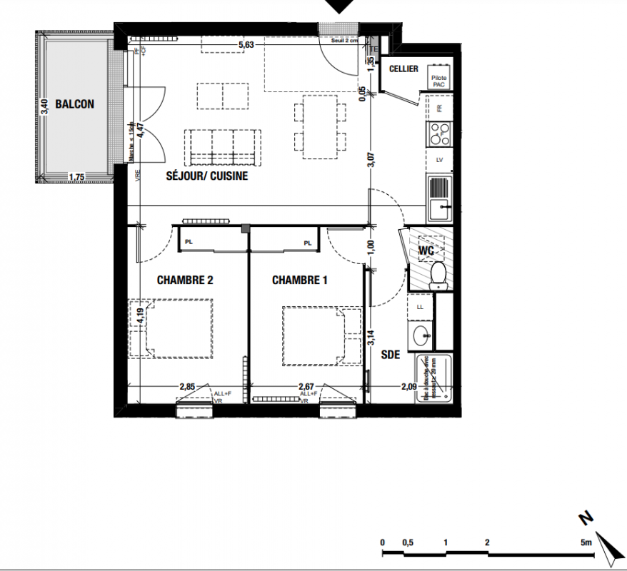
Prix
202 900€
Type
Appt. au 1er
Pièces
T3
Surface
65.6 m²
Exposition
-
Ville
Belin-Béliet (33830)
Livraison
4ème trimestre 2026
Informations
01 81 80 39 10

Présentation du programme "EPURE"

La ville bénéficie d’une excellente desserte grâce à plusieurs lignes de bus, telles que la ligne 610 vers Biganos et la ligne 505 vers Bordeaux, permettant de rejoindre aisément les communes avoisinantes. L’autoroute A63, à seulement 5 minutes de la résidence, offre un accès rapide et pratique au Bassin d’Arcachon en 35 minutes. Tous les commerces et équipements scolaires et sportifs sont accessibles dans un rayon de 1km.

Située au sein d’un quartier résidentiel composé de maisons individuelles et de petits collectifs, la résidence Épure jouit d’une architecture alliant avec succès authenticité et modernité.

Chaque appartement est pourvu d’un balcon ou d’un jardin (pour les rez-de-chaussée), accessible par des coursives extérieures, tandis que les maisons avec jardins privatifs sont desservies par un chemin agrémenté d’une pergola.

Autres logements T3 du programme "EPURE"

Disponibilité Prix Genre Pièces Surface Étage
Voir
Disponible
199 900€ Appt. T3 62.1m2 1er
Voir
Disponible
205 900€ Appt. T3 65.5m2 2ème
Voir
Disponible
207 900€ Appt. T3 65.4m2 2ème