109 000€
Appt. au 1er
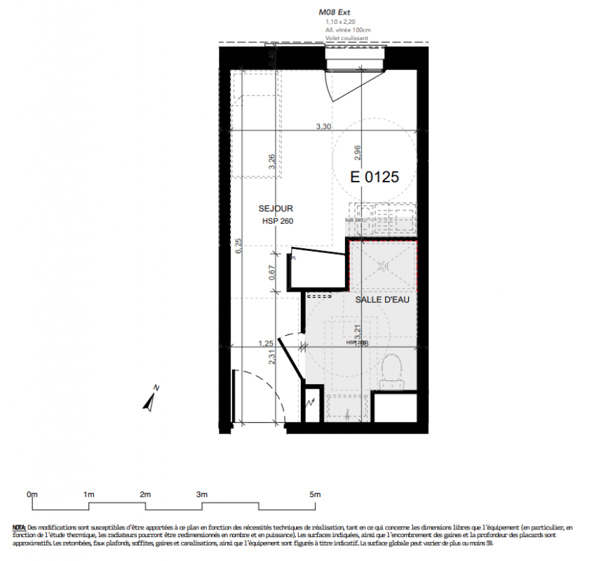
Studio
19.42 m²
Nord
Niort (79000)
1er trimestre 2024
01 81 80 39 10
Présentation du programme "My Campus"
Vous souhaitez le mettre en location ? Vous avez le choix entre de la location nue ou meublée avec un pack gestionnaire. Contactez nos équipes pour une simulation.Investissez à Niort, au cœur d’un pôle économique et universitaire en développementNiort est une agglomération attractive de plus de 120 000 habitants, en croissance constante (+0,5 %/an).2ème agglomération de taille moyenne la plus attractive en 2022.Capitale française de l’assurance et pôle économique majeur de l’économie sociale et solidaire.Une ville dynamique avec un potentiel locatif importantPlus de 120 entreprises du numérique, dans un écosystème labellisé French Tech.Ville universitaire en pleine expansion : 3 000 étudiants en 2022, près de 5 000 prévus d’ici 2028.Offre de formation variée : Universités du Grand-Ouest, écoles de commerce, d’informatique, de soins… Commodités et transportsGare SNCF de Niort accessible en quelques minutes en bus (liaisons vers Paris, Bordeaux, La Rochelle…) et à 10 minutes à vélo du centre-ville.Transports en commun à proximité : lignes de bus 2, 8 et 9 (centre-ville, pôles universitaires).Commerces à moins de 15 minutes à pied : Supermarchés, boulangerie, pharmacie et banque.Nombreux services et loisirs accessibles (stade, gymnase, piscine municipale, jardin des plantes…). Focus prestations/résidenceLa résidence est située dans le quartier des Sablières en plein essor.Des T1 aux espaces optimisés dotés d’une décoration soignée favorisant le bien-être des résidents.Une résidence à l’architecture contemporaine qui offre plus de 160 m² d’espaces communs : cafétéria, salle d’études, laverie et terrasse partagée. Le + du programmePack mobilier disponible pour un aménagement clé-en-main.Résidence aux normes RE2020
Autres logements Studio du programme "My Campus"
| Disponibilité | Prix | No | Genre | Pièces | Surface | Étage | Disponibilité | Prix | ||
|---|---|---|---|---|---|---|---|---|---|---|
| Voir | Disponible | 109 000€ | E129 | Appt. | Studio | 19.42m2 | 1er | Disponible | 109 000€ | Voir |
| Voir | Disponible | 109 000€ | E127 | Appt. | Studio | 19.42m2 | 1er | Disponible | 109 000€ | Voir |
| Voir | Disponible | 116 000€ | E229 | Appt. | Studio | 19.42m2 | 2ème | Disponible | 116 000€ | Voir |
| Voir | Disponible | 116 000€ | E227 | Appt. | Studio | 19.42m2 | 2ème | Disponible | 116 000€ | Voir |
| Voir | Disponible | 116 000€ | E225 | Appt. | Studio | 19.42m2 | 2ème | Disponible | 116 000€ | Voir |
| Voir | Disponible | 116 000€ | E224 | Appt. | Studio | 19.42m2 | 2ème | Disponible | 116 000€ | Voir |
| Voir | Disponible | 119 000€ | E011 | Appt. | Studio | 19.42m2 | 0-RDC | Disponible | 119 000€ | Voir |
| Voir | Disponible | 119 000€ | E010 | Appt. | Studio | 19.42m2 | 0-RDC | Disponible | 119 000€ | Voir |
| Voir | Disponible | 126 000€ | E218 | Appt. | Studio | 19.42m2 | 2ème | Disponible | 126 000€ | Voir |
| Voir | Disponible | 126 000€ | E217 | Appt. | Studio | 19.69m2 | 2ème | Disponible | 126 000€ | Voir |
| Voir | Disponible | 126 000€ | E216 | Appt. | Studio | 19.42m2 | 2ème | Disponible | 126 000€ | Voir |
| Voir | Disponible | 126 000€ | E215 | Appt. | Studio | 19.42m2 | 2ème | Disponible | 126 000€ | Voir |
| Voir | Disponible | 126 000€ | E214 | Appt. | Studio | 19.42m2 | 2ème | Disponible | 126 000€ | Voir |
| Voir | Disponible | 126 000€ | E118 | Appt. | Studio | 19.42m2 | 1er | Disponible | 126 000€ | Voir |