Prix
154 000€
Type
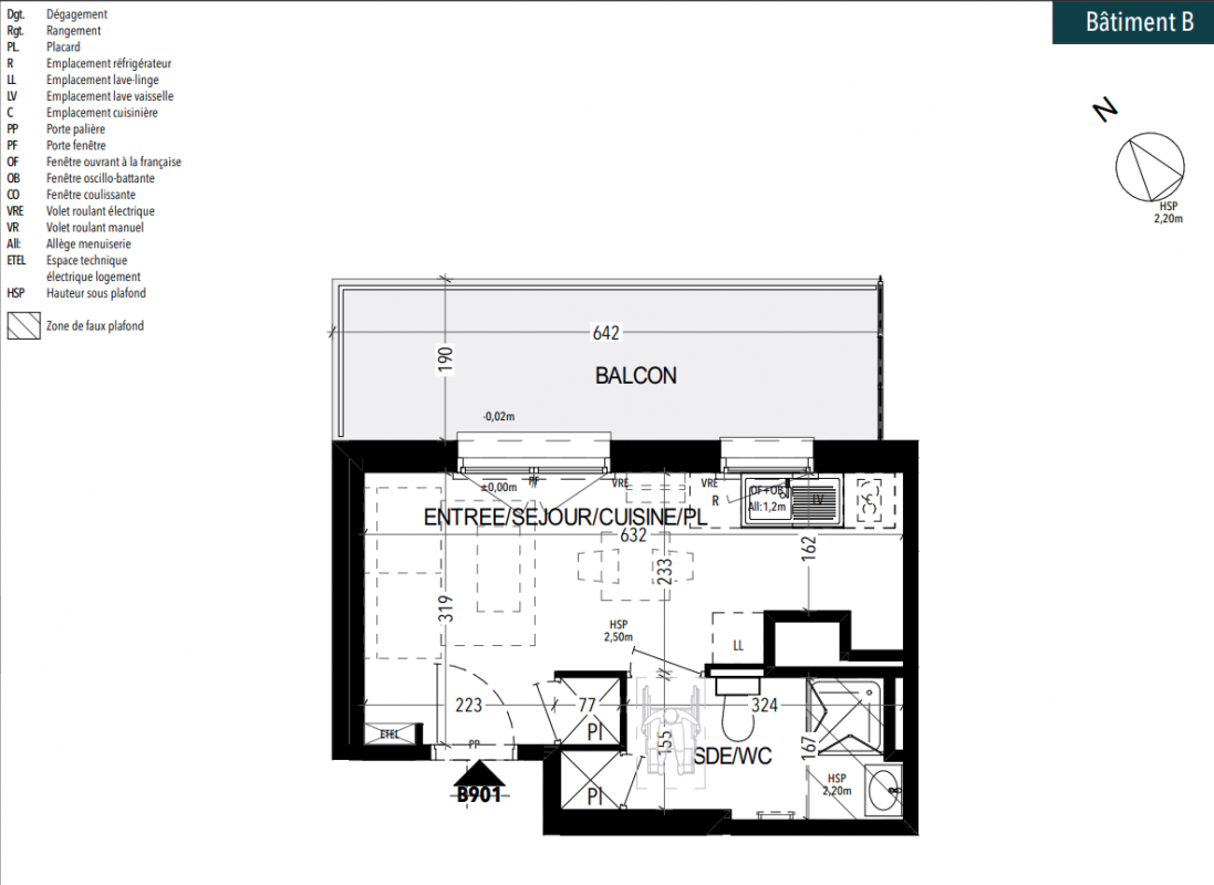
Appt. au 9ème
Pièces
Studio
Surface
21.87 m²
Exposition
-
Ville
Royan (17200)
Livraison
3ème trimestre 2028
Informations
01 81 80 39 10

Présentation du programme "Horizon"

Rare et prisée, la résidence Horizon vous offre le privilège de devenir propriétaire d’un appartement neuf à Royan, dans un emplacement exceptionnel. À seulement 10 minutes à pied du marché central et 7 min à vélo de la Grande Plage, vous profitez d’un cadre de vie unique entre océan, nature et vie citadine.La résidence Horizon propose 42 logements neufs, du studio au 4 pièces, tous dotés de balcon ou terrasse et parking en sous-sol. Certains bénéficient de vues dégagées sur l’océan et la Grande Plage, notamment les appartements en étage élevé avec extérieurs spacieux.

Autres logements Studio du programme "Horizon"

Disponibilité Prix Genre Pièces Surface Étage
Voir
Disponible
99 000€ Appt. Studio 21.89m2
Le bon plan
8ème
DO NOT CLICK