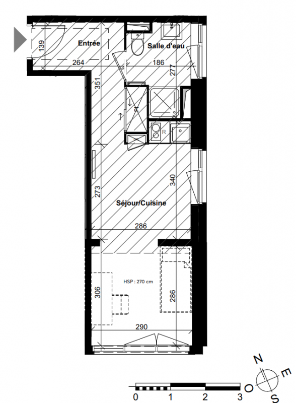
246 840€
Appt. au 3ème
Studio
27.85 m²
Sud
La Rochelle (17000)
4ème trimestre 2028
01 81 80 39 10
Présentation du programme "L'ENVOLEE"
Sur la façade Atlantique, La Rochelle séduit par sa douceur de vivre, son dynamisme économique et son patrimoine historique.
Au cœur du quartier Notre-Dame, la résidence l’Envolée bénéficie d’une situation privilégiée : à proximité immédiate des établissements scolaires, à seulement 8 min à pied du centre-ville et 13 min à pied du Vieux Port de La Rochelle. Ce projet tire profit d’une parcelle de près de 10 400 m² pour redonner vie à une ancienne friche entièrement imperméabilisée. Vertueuse, cette réalisation limite l’étalement urbain et contribue à la désartificialisation des sols à la faveur d’un espace végétalisé de plus de 4 220 m², soit plus de 40% de la surface totale.
Issue d’un projet de réhabilitation l’Envolée valorise un bâtiment existant pour accueillir des logements étudiants de type T1. Ces appartements bénéficieront d’espaces partagés de qualité tant à l’intérieur : coworking, salle d’activités et laverie qu’à l’extérieur : cœur d’îlot végétalisé et jardin potager.
Idéal investisseurs : rentabilité optimisée, gestion facilitée et fiscalité avantageuse, en toute liberté sans bail commercial.
Autres logements Studio du programme "L'ENVOLEE"
| Disponibilité | Prix | No | Genre | Pièces | Surface | Étage | Disponibilité | Prix | ||
|---|---|---|---|---|---|---|---|---|---|---|
| Voir | Disponible | 213 120€ | FE111 | Appt. | Studio | 23.13m2 | 1er | Disponible | 213 120€ | Voir |
| Voir | Disponible | 184 440€ | FE005 | Appt. | Studio | 21.14m2 | 0-RDC | Disponible | 184 440€ | Voir |
| Voir | Disponible | 160 920€ | FE332 | Appt. | Studio | 17.39m2 | 3ème | Disponible | 160 920€ | Voir |
| Voir | Disponible | 179 640€ | FE329 | Appt. | Studio | 19.67m2 | 3ème | Disponible | 179 640€ | Voir |
| Voir | Disponible | 201 600€ | FE407 | Appt. | Studio | 21.21m2 | 4ème | Disponible | 201 600€ | Voir |
| Voir | Disponible | 193 680€ | FE307 | Appt. | Studio | 21.21m2 | 3ème | Disponible | 193 680€ | Voir |
| Voir | Disponible | 148 800€ | FE425 | Appt. | Studio | 14.13m2 | 4ème | Disponible | 148 800€ | Voir |
| Voir | Disponible | 187 560€ | FE429 | Appt. | Studio | 19.67m2 | 4ème | Disponible | 187 560€ | Voir |
| Voir | Disponible | 254 400€ | FE415 | Appt. | Studio | 27.85m2 | 4ème | Disponible | 254 400€ | Voir |
| Voir | Disponible | 226 440€ | FE411 | Appt. | Studio | 23.13m2 | 4ème | Disponible | 226 440€ | Voir |
| Voir | Disponible | 191 160€ | FE206 | Appt. | Studio | 21.21m2 | 2ème | Disponible | 191 160€ | Voir |
| Voir | Disponible | 191 160€ | FE205 | Appt. | Studio | 21.24m2 | 2ème | Disponible | 191 160€ | Voir |
| Voir | Disponible | 170 280€ | FE212 | Appt. | Studio | 17.39m2 | 2ème | Disponible | 170 280€ | Voir |
| Voir | Disponible | 191 160€ | FE203 | Appt. | Studio | 21.22m2 | 2ème | Disponible | 191 160€ | Voir |
| Voir | Disponible | 215 760€ | FE211 | Appt. | Studio | 23.13m2 | 2ème | Disponible | 215 760€ | Voir |
| Voir | Disponible | 174 240€ | FE129 | Appt. | Studio | 19.67m2 | 1er | Disponible | 174 240€ | Voir |
| Voir | Disponible | 170 280€ | FE436 | Appt. | Studio | 17.34m2 | 4ème | Disponible | 170 280€ | Voir |
| Voir | Disponible | 204 240€ | FE416 | Appt. | Studio | 21.3m2 | 4ème | Disponible | 204 240€ | Voir |
| Voir | Disponible | 201 600€ | FE405 | Appt. | Studio | 21.24m2 | 4ème | Disponible | 201 600€ | Voir |
| Voir | Disponible | 201 600€ | FE402 | Appt. | Studio | 21.16m2 | 4ème | Disponible | 201 600€ | Voir |
| Voir | Disponible | 191 160€ | FE304 | Appt. | Studio | 20.69m2 | 3ème | Disponible | 191 160€ | Voir |
| Voir | Disponible | 193 680€ | FE308 | Appt. | Studio | 21.21m2 | 3ème | Disponible | 193 680€ | Voir |
| Voir | Disponible | 193 680€ | FE302 | Appt. | Studio | 21.16m2 | 3ème | Disponible | 193 680€ | Voir |
| Voir | Disponible | 211 680€ | FE228 | Appt. | Studio | 22.83m2 | 2ème | Disponible | 211 680€ | Voir |
| Voir | Disponible | 244 320€ | FE215 | Appt. | Studio | 27.85m2 | 2ème | Disponible | 244 320€ | Voir |
| Voir | Disponible | 191 160€ | FE202 | Appt. | Studio | 21.16m2 | 2ème | Disponible | 191 160€ | Voir |
| Voir | Disponible | 136 680€ | FE334 | Appt. | Studio | 13.78m2 | 3ème | Disponible | 136 680€ | Voir |
| Voir | Disponible | 143 520€ | FE325 | Appt. | Studio | 14.13m2 | 3ème | Disponible | 143 520€ | Voir |
| Voir | Disponible | 151 920€ | FE235 | Appt. | Studio | 17.7m2 | 2ème | Disponible | 151 920€ | Voir |
| Voir | Disponible | 241 800€ | FE115 | Appt. | Studio | 27.85m2 | 1er | Disponible | 241 800€ | Voir |
| Voir | Disponible | 158 280€ | FE232 | Appt. | Studio | 17.39m2 | 2ème | Disponible | 158 280€ | Voir |
| Voir | Disponible | 246 000€ | FE301 | Appt. | Studio | 28.24m2 | 3ème | Disponible | 246 000€ | Voir |
| Voir | Disponible | 193 680€ | FE309 | Appt. | Studio | 21.16m2 | 3ème | Disponible | 193 680€ | Voir |
| Voir | Disponible | 180 960€ | FE230 | Appt. | Studio | 20.15m2 | 2ème | Disponible | 180 960€ | Voir |
| Voir | Disponible | 193 680€ | FE303 | Appt. | Studio | 21.22m2 | 3ème | Disponible | 193 680€ | Voir |
| Voir | Disponible | 209 040€ | FE128 | Appt. | Studio | 22.83m2 | 1er | Disponible | 209 040€ | Voir |
| Voir | Disponible | 193 680€ | FE216 | Appt. | Studio | 21.3m2 | 2ème | Disponible | 193 680€ | Voir |
| Voir | Disponible | 178 320€ | FE126 | Appt. | Studio | 19.54m2 | 1er | Disponible | 178 320€ | Voir |
| Voir | Disponible | 191 640€ | FE413 | Appt. | Studio | 19.18m2 | 4ème | Disponible | 191 640€ | Voir |
| Voir | Disponible | 178 320€ | FE130 | Appt. | Studio | 20.15m2 | 1er | Disponible | 178 320€ | Voir |
| Voir | Disponible | 198 840€ | FE404 | Appt. | Studio | 20.69m2 | 4ème | Disponible | 198 840€ | Voir |
| Voir | Disponible | 196 320€ | FE323 | Appt. | Studio | 21.3m2 | 3ème | Disponible | 196 320€ | Voir |
| Voir | Disponible | 201 600€ | FE409 | Appt. | Studio | 21.16m2 | 4ème | Disponible | 201 600€ | Voir |
| Voir | Disponible | 160 920€ | FE331 | Appt. | Studio | 17.7m2 | 3ème | Disponible | 160 920€ | Voir |
| Voir | Disponible | 193 680€ | FE318 | Appt. | Studio | 20.84m2 | 3ème | Disponible | 193 680€ | Voir |
| Voir | Disponible | 176 880€ | FE229 | Appt. | Studio | 19.67m2 | 2ème | Disponible | 176 880€ | Voir |
| Voir | Disponible | 193 680€ | FE221 | Appt. | Studio | 21.35m2 | 2ème | Disponible | 193 680€ | Voir |
| Voir | Disponible | 193 680€ | FE305 | Appt. | Studio | 21.24m2 | 3ème | Disponible | 193 680€ | Voir |
| Voir | Disponible | 131 280€ | FE134 | Appt. | Studio | 13.78m2 | 1er | Disponible | 131 280€ | Voir |
| Voir | Disponible | 218 400€ | FE311 | Appt. | Studio | 23.13m2 | 3ème | Disponible | 218 400€ | Voir |
| Voir | Disponible | 180 960€ | FE213 | Appt. | Studio | 19.18m2 | 2ème | Disponible | 180 960€ | Voir |
| Voir | Disponible | 181 920€ | FE001 | Appt. | Studio | 21.16m2 | 0-RDC | Disponible | 181 920€ | Voir |
| Voir | Disponible | 153 000€ | FE007 | Appt. | Studio | 17.34m2 | 0-RDC | Disponible | 153 000€ | Voir |
| Voir | Disponible | 201 600€ | FE406 | Appt. | Studio | 21.21m2 | 4ème | Disponible | 201 600€ | Voir |
| Voir | Disponible | 196 320€ | FE319 | Appt. | Studio | 21.35m2 | 3ème | Disponible | 196 320€ | Voir |
| Voir | Disponible | 164 880€ | FE227 | Appt. | Studio | 17.47m2 | 2ème | Disponible | 164 880€ | Voir |
| Voir | Disponible | 133 920€ | FE234 | Appt. | Studio | 13.78m2 | 2ème | Disponible | 133 920€ | Voir |
| Voir | Disponible | 201 600€ | FE403 | Appt. | Studio | 21.22m2 | 4ème | Disponible | 201 600€ | Voir |
| Voir | Disponible | 183 600€ | FE330 | Appt. | Studio | 20.15m2 | 3ème | Disponible | 183 600€ | Voir |
| Voir | Disponible | 214 440€ | FE328 | Appt. | Studio | 22.83m2 | 3ème | Disponible | 214 440€ | Voir |
| Voir | Disponible | 196 320€ | FE321 | Appt. | Studio | 21.35m2 | 3ème | Disponible | 196 320€ | Voir |
| Voir | Disponible | 191 160€ | FE209 | Appt. | Studio | 21.16m2 | 2ème | Disponible | 191 160€ | Voir |
| Voir | Disponible | 191 160€ | FE207 | Appt. | Studio | 21.21m2 | 2ème | Disponible | 191 160€ | Voir |
| Voir | Disponible | 201 600€ | FE408 | Appt. | Studio | 21.21m2 | 4ème | Disponible | 201 600€ | Voir |
| Voir | Disponible | 136 680€ | FE333 | Appt. | Studio | 13.78m2 | 3ème | Disponible | 136 680€ | Voir |
| Voir | Disponible | 162 240€ | FE335 | Appt. | Studio | 17.7m2 | 3ème | Disponible | 162 240€ | Voir |
| Voir | Disponible | 180 960€ | FE226 | Appt. | Studio | 19.54m2 | 2ème | Disponible | 180 960€ | Voir |
| Voir | Disponible | 253 920€ | FE401 | Appt. | Studio | 28.24m2 | 4ème | Disponible | 253 920€ | Voir |
| Voir | Disponible | 191 640€ | FE430 | Appt. | Studio | 20.15m2 | 4ème | Disponible | 191 640€ | Voir |
| Voir | Disponible | 183 600€ | FE313 | Appt. | Studio | 19.18m2 | 3ème | Disponible | 183 600€ | Voir |
| Voir | Disponible | 222 480€ | FE428 | Appt. | Studio | 22.83m2 | 4ème | Disponible | 222 480€ | Voir |
| Voir | Disponible | 183 600€ | FE326 | Appt. | Studio | 19.54m2 | 3ème | Disponible | 183 600€ | Voir |
| Voir | Disponible | 140 760€ | FE225 | Appt. | Studio | 14.13m2 | 2ème | Disponible | 140 760€ | Voir |