349 000€
Appt. au 0-RDC
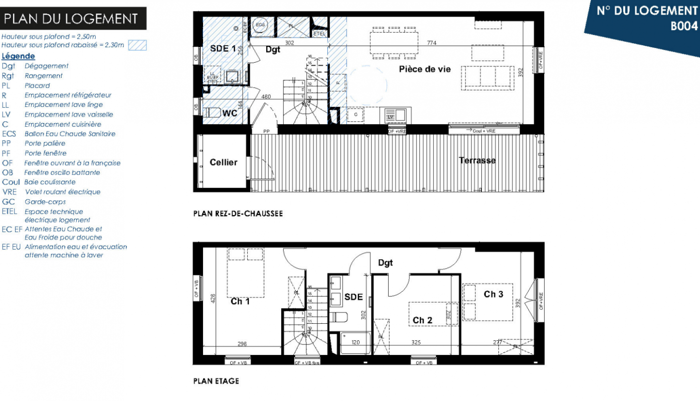
T4
92.3 m²
-
Dompierre-sur-Mer (17139)
4ème trimestre 2025
01 81 80 39 10
Présentation du programme "Aménité"
DERNIERE MAISON T4 DISPONIBLE - PROGRAMME LIVRÉ - PRO OU PARTICULIERVenez vivre dans une résidence engagée ! Ouverte et chaleureuse, elle privilégie l'intimité et le partage. Chaque logement est traversant et bénéficie d'un espace extérieur (jardin, terrasse, balcon...) ainsi que d'une ou deux places de parking. Les espaces de vie et les extérieurs sont orientés plein sud, donnant sur des espaces paysagers qui permettent de profiter pleinement de son logement, à l'intérieur comme à l'extérieur. La construction de cette résidence est une véritable innovation écologique, chaque logement étant entièrement réalisé en structure de bois avec un système constructif offrant une finition de qualité intérieure et extérieure. Cette résidence en avance sur son temps est labellisée "énergie plus, carbone moins" (E3C2 et E3C4) et répond aux normes du Bâtiment Durable Nouvelle-Aquitaine (BDNA argent).Découvrir le programme : https://www.eden-promotion.fr/programmes-immobiliers/immobilier-neuf-dompierre-sur-mer/

