Prix
204 000€
Type
Appt. au 4ème
Pièces
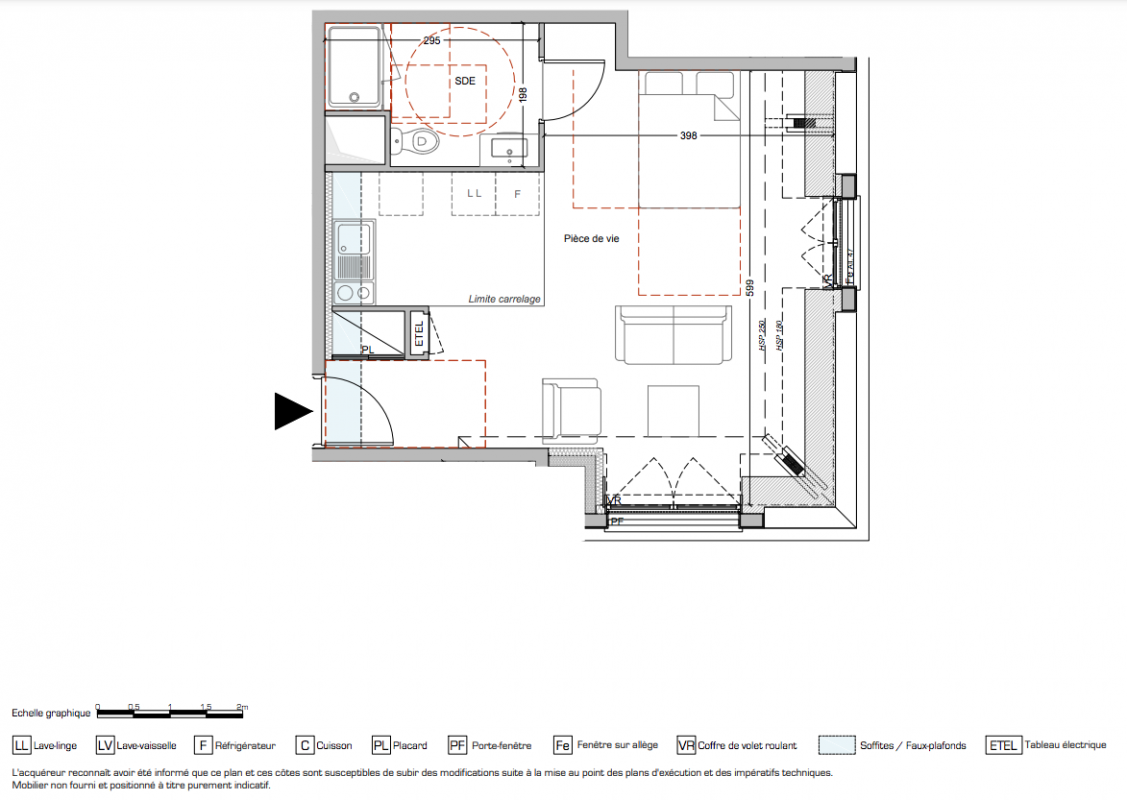
Studio
Surface
36.16 m²
Exposition
Est
Ville
Sainte-Adresse (76310)
Livraison
4ème trimestre 2026
Informations
01 81 80 39 10

Présentation du programme "VILLA CÉLESTE"

Laissez-vous séduire par la nouvelle résidence VILLA CÉLESTE signée VINCI Immobilier, idéalement située le long des rives de la Manche, dans la dynamique commune de SAINTE-ADRESSE, au cœur d’un quartier prisé et particulièrement apprécié pour son calme et sa douceur de vivre.
Avec son architecture traditionnelle, elle proposera une large gamme de 23 logements, allant du studio au 5 pièces, avec pour certains une vue mer à partir du 3ème étage. Ils offriront de belles surfaces allant jusqu’à plus de 100 m² pour les plus spacieux. Bien entendu, chaque logement bénéficiera d’une voire deux places de stationnement privatif en sous-sol.
Un emplacement étoilé où concrétiser votre projet immobilier : n’attendez plus et contactez nos conseillers au 01 81 80 39 10 (appel gratuit).

Autres logements Studio du programme "VILLA CÉLESTE"

Pas de logements disponibles
DO NOT CLICK