Prix
244 550€  (TVA 20%)
215 000€  (TVA 5.5%)
Type
Appt. au 0-RDC
Pièces
T3
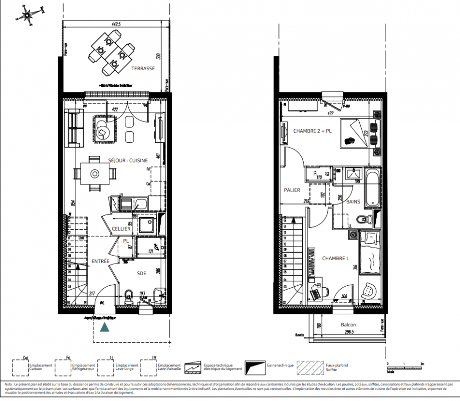
Surface
63.05 m²
Exposition
Nord
Ville
Le Havre (76600)
Livraison
1er trimestre 2028
Informations
01 81 80 39 10

Présentation du programme "Jardins De La Côte D'albâtre"

Vous souhaitez y habiter ? Vérifiez votre éligibilité au PTZ avec nos équipes !Habitez ou investissez au Havre, entre dynamisme économique et qualité de vieLe Havre est inscrite au Patrimoine mondial de l'UNESCO pour son architecture moderne et audacieuse, son front de mer et sa qualité de vie entre ville et littoral. Une situation unique entre mer et estuaire : 65 km de littoral, plage en coeur de ville, 750 hectares de parcs, proximité des falaises d'Étretat et station balnéaire Sainte-Adresse. Plus grande ville de Normandie avec 275 000 habitants, Le Havre conjugue modernité et traditions.  L'attractivité du littoral normandDeuxième port de commerce français, premier port pour les conteneurs, moteurs d'emplois dans la logistique, l'industrie maritime, l'énergie et l'aéronotique avec 125 000 emplois et 28 000 entreprises présentes (Renault, Safran, EDF, Total...). Le Havre est une ville étudiante et culturelle avec 13 600 étudiants, universités et grandes écoles (EM Normandie), musées, festivals et événements toute l'année. La ville est proche de la Capitale, à 2h30 de Paris en TGV et en 2h en voiture.  Commodités et transportsL'hyper-centre du Havre est accessible en 10 minutes. La résidence est à 5 minutes des commerces de proximité, 10 minutes du centre commercial Grand Cap, des restaurants et marchés locaux. Diverses crèches, écoles maternelles et élémentaires sont accessibles en 5 minutes à pied. Le collège et lycée sont accessibles en 10 minutes. La gare SNCF est à 15 minutes à pied.La plage de Saint-Adresse est accessible en 15 minutes.  Focus Prestations/Maisons Maisons contemporaines : 3 et 4 pièces avec des intérieurs optimisés et lumineux.Espaces extérieurs pour chaque maison : terrasse et jardin privatif. Les logements sont accompagnés d'une cuisine équipée et de placards aménagés.Stationnement inclus avec parkings aériens et locaux à vélos.  Le + du programme : Un emplacement équilibré entre calme résidentiel, proximité du littoral et accès rapide aux pôles économiques. 

Autres logements T3 du programme "Jardins De La Côte D'albâtre"

Disponibilité Prix Genre Pièces Surface Étage
Voir
Disponible
244 550€ Appt. T3 63.05m2 0-RDC
Voir
Disponible
244 550€ Appt. T3 63.12m2 0-RDC
Voir
Disponible
244 550€ Appt. T3 63.12m2 0-RDC
DO NOT CLICK