Prix
129 000€
Type
Appt. au 1er
Pièces
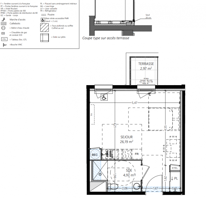
Studio
Surface
31.89 m²
Exposition
Nord
Ville
Le Havre (76600)
Livraison
1er trimestre 2026
Informations
01 81 80 39 10

Présentation du programme "HAVRE EN SCENE"

ATTENTION STOP TMA + CHOIX MAT / BATIMENT A et B

La résidence Havre en Scène :
- 48 logements lumineux et confortables
- Du 1 au 4 pièces, répartis sur 2 bâtiments
- Terrasse ou balcon pour tous les logements
- Stationnement privatif sécurisé
- Nouveaux commerces et espaces de bureaux en rez-de-chaussée

Une opportunité pour les investisseurs : marché locatif porteur, prix attractif dans un quartier en mutation
Et pour les primo-accédants : Prêt à Taux Zéro, TVA 5,5 %, aides de la Communauté urbaine Le Havre Seine Métropole

Autres logements Studio du programme "HAVRE EN SCENE"

Pas de logements disponibles
DO NOT CLICK