122 000€ (TVA 20%)
111 833€ (TVA 10%)
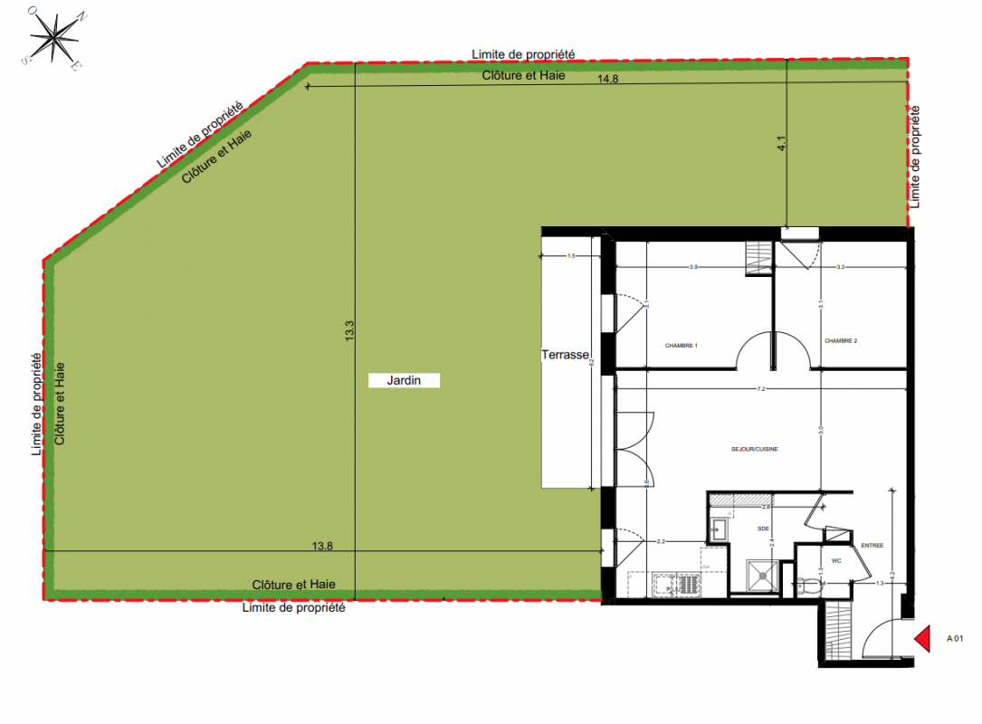
Appt. au 0-RDC
Studio
34.8 m²
-
Darnétal (76160)
2ème trimestre 2027
01 81 80 39 10
Présentation du programme "Rodbaek Village"
Découvrez Rodbaek Village !
Situé en limite de St Martin-du-Vivier découvrez l'environnement exceptionnel de Rodbaek Village à Darnétal.
Sur plus de deux hectares pensés par un paysagiste et un écologue, LogiH Normandie réalise un projet composé de MAISONS en 4 et 5 pièces et d'appartements du studio au T3.
Eligibles au PTZ et à la location-accession (PSLA) devenez propriétaire aux meilleures conditions grâce à la TVA réduite et une exonération de 15 ans de la taxe foncière*
Pour investir, les appartements du studio au T3 sont éligibles au dispositif LLI, pour bénéficier d'un TVA à 10% au lieu de 20% et d'une fiscalité avantageuse.*
Pour habiter ou investir, rencontrez nos conseillers pour choisir votre futur appartement ou maison et devenir propriétaire aux meilleures conditions !

