Ce lot n’est plus disponible chez VIANOVA ou est vendu.
Vous pouvez revenir dans 24h pour vérifier le stock à jour ou contacter un conseiller Vianova pour vérifier le stock en direct.
Vous pouvez également continuer votre recherche sur notre site « ici ».
118 272€
Appt. au 0-RDC
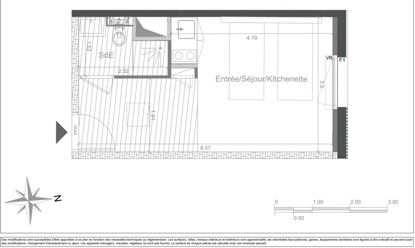
Studio
21.77 m²
Nord
Touques (14800)
4ème trimestre 2027
01 81 80 39 10
Présentation du programme "Symone By Adonis Touques"
La résidence "Symon(e) By Adonis" est située à la porte d'entrée de Deauville et Trouville et bénéficie :
- d'un accès rapide aux plages, aux casinos, hippodromes et golfs.
- de la proximité de la gare SNCF de Deauville (2 km), de l'autoroute A13/A29 (10 km) et de l'aéroport de Deauville-Normandie.
- d'un environnement à la fois urbain, touristique et naturel, à proximité du centre commercial Carrefour, de clubs de tennis, pistes cyclables et autres commodités
"Symon(e) By Adonis" n'est pas une résidence classique, mais une expérience immersive, fondée sur :
- l'art et le design : des espaces élégants, décorés avec un style contemporain et graphique.
- le jeu : playgrounds avec baby-foot, échecs, backgammon...
- lieux partagés et animation intergénérationnelle qui favorisent les interactions.
Cette résidence premium offre :
- lobby type coffee-shop, espace coworking, salle de sport connectée,
- piscine, salle de petit-déjeuner modulable, local vélos sécurisé.
- une connexion directe à la piste cyclable vers les plages.
- bowling et restaurants à proximité immédiate.
Elle s'adresse aussi bien aux touristes (couples, familles), aux voyageurs d'affaires mais aussi aux jeunes actifs, saisonniers et télétravailleurs.
Autres logements Studio du programme "Symone By Adonis Touques"
Disponibilité | Prix | No | Genre | Pièces | Surface | Étage | Disponibilité | Prix | ||
---|---|---|---|---|---|---|---|---|---|---|
Voir | Disponible | 139 405€ | 103 | Appt. | Studio | 25.66m2 Le bon plan | 0-RDC | Disponible | 139 405€ | Voir |
Voir | Disponible | 137 884€ | 104 | Appt. | Studio | 25.38m2 | 0-RDC | Disponible | 137 884€ | Voir |
Voir | Disponible | 155 758€ | 106 | Appt. | Studio | 28.67m2 | 0-RDC | Disponible | 155 758€ | Voir |
Voir | Disponible | 118 218€ | 109 | Appt. | Studio | 21.76m2 | 0-RDC | Disponible | 118 218€ | Voir |
Voir | Disponible | 100 561€ | 111 | Appt. | Studio | 18.51m2 | 0-RDC | Disponible | 100 561€ | Voir |
Voir | Disponible | 139 568€ | 119 | Appt. | Studio | 25.69m2 | 0-RDC | Disponible | 139 568€ | Voir |
Voir | Disponible | 137 939€ | 123 | Appt. | Studio | 25.39m2 | 0-RDC | Disponible | 137 939€ | Voir |
Voir | Disponible | 148 750€ | 202 | Appt. | Studio | 27.38m2 | 0-RDC | Disponible | 148 750€ | Voir |
Voir | Optionné | 118 218€ | 309 | Appt. | Studio | 21.76m2 | 0-RDC | Optionné Mais pas encore vendu 😉 | 118 218€ | Voir |
Voir | Disponible | 148 750€ | 402 | Appt. | Studio | 27.38m2 | 0-RDC | Disponible | 148 750€ | Voir |
Voir | Disponible | 116 479€ | 407 | Appt. | Studio | 21.44m2 | 0-RDC | Disponible | 116 479€ | Voir |
Voir | Disponible | 140 057€ | 413 | Appt. | Studio | 25.78m2 | 0-RDC | Disponible | 140 057€ | Voir |
Voir | Disponible | 139 568€ | 420 | Appt. | Studio | 25.69m2 | 0-RDC | Disponible | 139 568€ | Voir |