Prix
280 000€
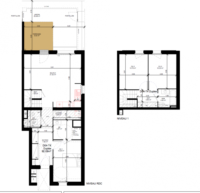
Type
Appt. au 0-RDC
Pièces
T4
Surface
92.09 m²
Exposition
-
Ville
Plumetot (14440)
Livraison
3ème trimestre 2025
Informations
01 81 80 39 10

Présentation du programme "Opaline"

Opaline vous propose une offre de logement séduisante dans un cadre idéal. Une précieuse adresse à Douvre le Delivrande à 3 kms de la mer, aux portes de Caen, dans une petite ville de charme et au coeur d'un écoquartier ! Il y a le choix entre logement intermédiaire et petits collectifs, tous pouvant offrir un cadre parfait pour de la résidence principal. Opaline propose •16 logements intermédiaires Il s'agit de logements individuels superposés de 2 ou 3 chambres, en duplex. Tous bénéficient d'une entrée individuelle, depuis le coeur d'ilot, ainsi que d'une grande terrasse ou d'un jardin. Les futurs occupants de ces logements disposent d'une place de parking sous pergolas avec un espace de stockage privatif. •2 petits collectifs Ils regroupent 17 et 15 appartements chacun. Les appartements sont composés d'une ou deux chambres. Tous se prolongent vers de larges loggias ou balcon qui permettent aisément de loger du mobilier pour y manger et s'y détendre.... Ceux au premier niveau bénéficient d'une terrasse avec un escalier pour rejoindre un jardin. Le dernier niveau offre aux logements, à la fois des vues plus lointaines, mais également de grands espaces extérieurs. Les deux ensembles collectifs partagent un parking commun en sous-sol ainsi que d'un local vélo.

Autres logements T4 du programme "Opaline"

Pas de logements disponibles