Prix
199 000€
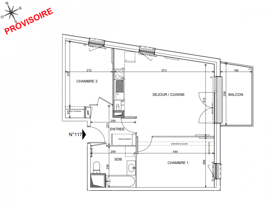
Type
Appt. au 1er
Pièces
T3
Surface
58.02 m²
Exposition
Nord
Ville
Colombelles (14460)
Livraison
1er trimestre 2027
Informations
01 81 80 39 10

Présentation du programme "Les Promenades de Gaia"

À 8 km du centre-ville de Caen, cette nouvelle résidence s’implante dans un quartier en pleine éclosion entre cœur de ville, vallée de l’Orne et zone d’activités de Colombelles. Alliée de votre bien-être, elle conjugue une architecture moderne faisant la part belle aux matériaux nobles avec un vaste jardin intérieur et des commerces en pied d’immeuble. Idéale pour habiter comme pour investir, elle propose des appartements du 2 au 4 pièces, dont des plans évolutifs, et trois maisons de 85 m² avec jardins. Balcons, loggias et terrasses ajoutent au charme des intérieurs soigneusement conçus.

Autres logements T3 du programme "Les Promenades de Gaia"

Disponibilité Prix Genre Pièces Surface Étage
Voir
Disponible
212 000€ Appt. T3 57.13m2 1er
Voir
Disponible
223 000€ Appt. T3 57.72m2 2ème
Voir
Disponible
213 000€ Appt. T3 58.81m2 2ème
Voir
Disponible
212 000€ Appt. T3 58.02m2 2ème
Voir
Disponible
212 000€ Appt. T3 58.05m2 2ème
Voir
Disponible
230 000€ Appt. T3 57.49m2 3ème
DO NOT CLICK