Prix
419 000€
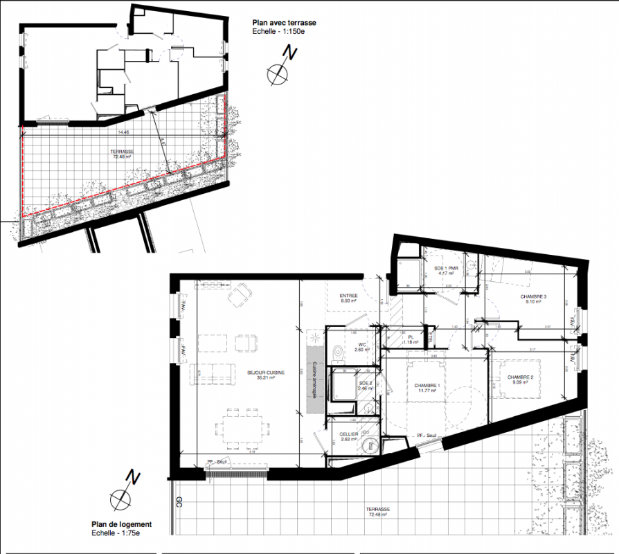
Type
Appt. au 2ème
Pièces
T4
Surface
86.7 m²
Exposition
-
Ville
Caen (14000)
Livraison
4ème trimestre 2028
Informations
01 81 80 39 10

Présentation du programme "Sélène"

Située entre les quartiers Saint‑Paul et Beaulieu, cette résidence intimiste s'implante dans un environnement calme et pavillonnaire, tout en bénéficiant d'une excellente connexion au centre‑ville grâce au futur arrêt de tram Pompidou.
Sélène propose 24 appartements, du studio au 4 pièces, conçus pour offrir confort et qualité de vie :

- pièces de vie lumineuses,
- balcons, terrasses ou jardins privatifs selon les logements,
- stationnement en sous‑sol,
- cadre résidentiel recherché.

Que vous souhaitiez habiter ou investir, Sélène réunit toutes les qualités d'un emplacement attractif et durable à Caen.

Autres logements T4 du programme "Sélène"

Disponibilité Prix Genre Pièces Surface Étage
Voir
Disponible
399 000€ Appt. T4 86.9m2 3ème
Voir
Disponible
349 000€ Appt. T4 79.66m2
Le bon plan
0-RDC
DO NOT CLICK