Prix
550 000€
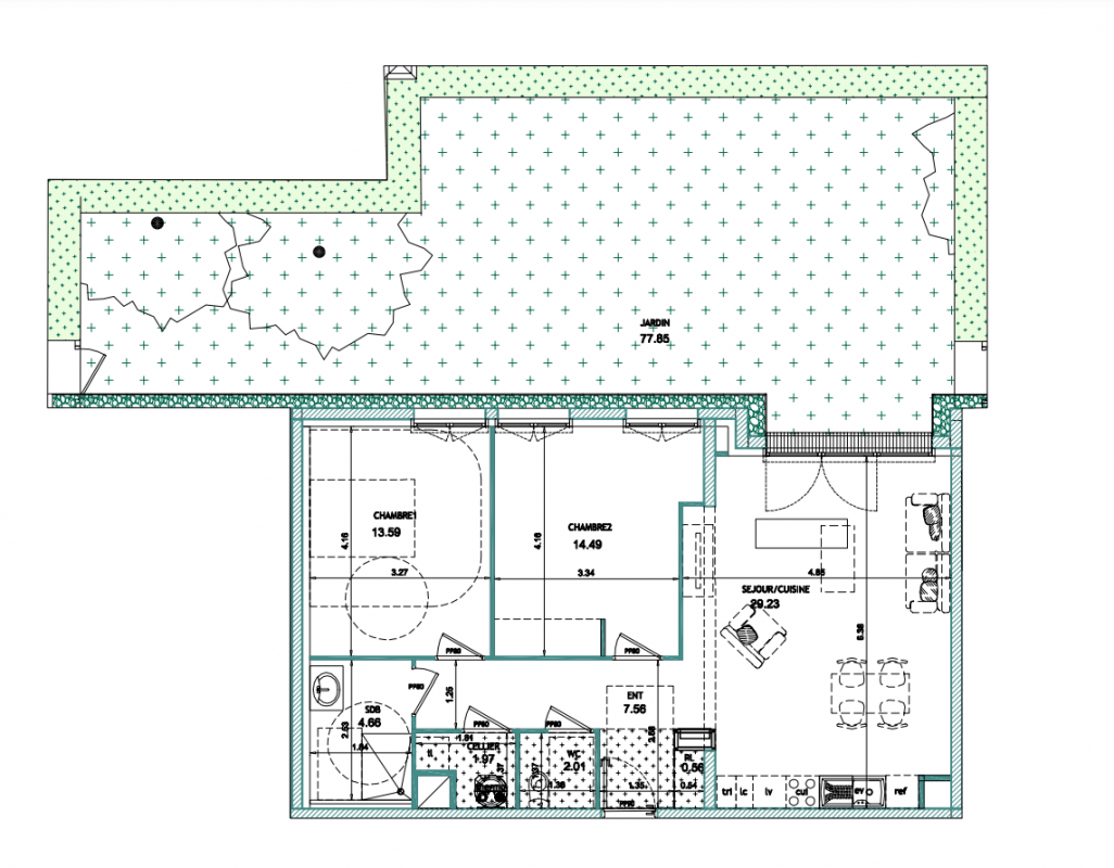
Type
Appt. au 0-RDC
Pièces
T3
Surface
74.07 m²
Exposition
Ouest
Ville
Benerville-sur-Mer (14910)
Livraison
4ème trimestre 2028
Informations
01 81 80 39 10

Présentation du programme "VILLAS GABRIEL 1"

A 2 heures de Paris en voiture, la résidence VILLAS GABRIEL vous accueille dans un cadre exceptionnel du littoral normand, au cœur de la charmante station de Bénerville-sur-Mer. Nichée à 300 m de la plage et à seulement 2 km du centre de Deauville, cette nouvelle réalisation offre tous les avantages d’un investissement pérenne entre mer et prestige. Festival, casino, courses hippiques, shopping et moments de détente sur la célèbre promenade des planches, ici c’est toute l’effervescence de Deauville qui s’offre à votre porte. Située à l’angle de la rue Gaston Gallimard et de la rue Cornier, la résidence VILLAS GABRIEL se pare d’une élégante architecture néo-normande, parfaitement intégrée dans l’environnement de ce quartier calme et verdoyant de Bénerville-sur-Mer. Répartis sur trois bâtiments, les appartements de standing déclinés du studio au 5 pièces présentent des volumes fonctionnels et lumineux, tous prolongés d’un balcon, d’une terrasse ou d’un jardin privatif. Chaque intérieur bénéficie de prestations de confort soignées, associées à des matériaux de qualité et à une isolation thermique et acoustique performante. Au sous-sol, la résidence abrite des parkings privatifs et des locaux à vélos sécurisés.
Que ce soit pour y vivre à l’année, profiter d’une résidence secondaire ou réaliser un investissement locatif saisonnier, ce programme répond aux attentes d’une clientèle exigeante, en quête d’un art de vivre où raffinement et sérénité se conjuguent au quotidien. Soyez parmi les premiers à choisir cette adresse rare de Bénerville-sur-Mer en nous contactant au 01 81 80 39 10.

Autres logements T3 du programme "VILLAS GABRIEL 1"

Disponibilité Prix Genre Pièces Surface Étage
Voir
Disponible
497 000€ Appt. T3 66.91m2 1er
Voir
Disponible
492 000€ Appt. T3 64.11m2 1er
Voir
Disponible
594 000€ Appt. T3 76.42m2 1er
Voir
Disponible
513 000€ Appt. T3 66.91m2 2ème
Voir
Disponible
507 000€ Appt. T3 64.11m2 2ème
Voir
Disponible
609 000€ Appt. T3 76.42m2 2ème
Voir
Disponible
520 000€ Appt. T3 64.18m2 3ème
Voir
Disponible
447 000€ Appt. T3 53.95m2 3ème
Voir
Disponible
624 000€ Appt. T3 75.63m2 3ème
Voir
Disponible
569 000€ Appt. T3 68.59m2 3ème
Voir
Disponible
544 000€ Appt. T3 71.33m2 0-RDC
Voir
Disponible
468 000€ Appt. T3 61.88m2 0-RDC
Voir
Disponible
555 000€ Appt. T3 74.06m2 1er
Voir
Disponible
565 000€ Appt. T3 70.59m2 1er
Voir
Disponible
568 000€ Appt. T3 70.59m2 1er
Voir
Disponible
495 000€ Appt. T3 61.73m2 1er
Voir
Disponible
558 000€ Appt. T3 70.26m2 1er
Voir
Disponible
577 000€ Appt. T3 70.59m2 2ème
Voir
Disponible
582 000€ Appt. T3 70.59m2 2ème
Voir
Disponible
500 000€ Appt. T3 61.73m2 2ème
Voir
Disponible
564 000€ Appt. T3 72.26m2 2ème
Voir
Disponible
580 000€ Appt. T3 71.04m2 3ème
Voir
Disponible
547 000€ Appt. T3 69.89m2 3ème
Voir
Disponible
488 000€ Appt. T3 59.05m2 3ème
DO NOT CLICK