Prix
454 000€  (TVA 20%)
416 167€  (TVA 10%)
Type
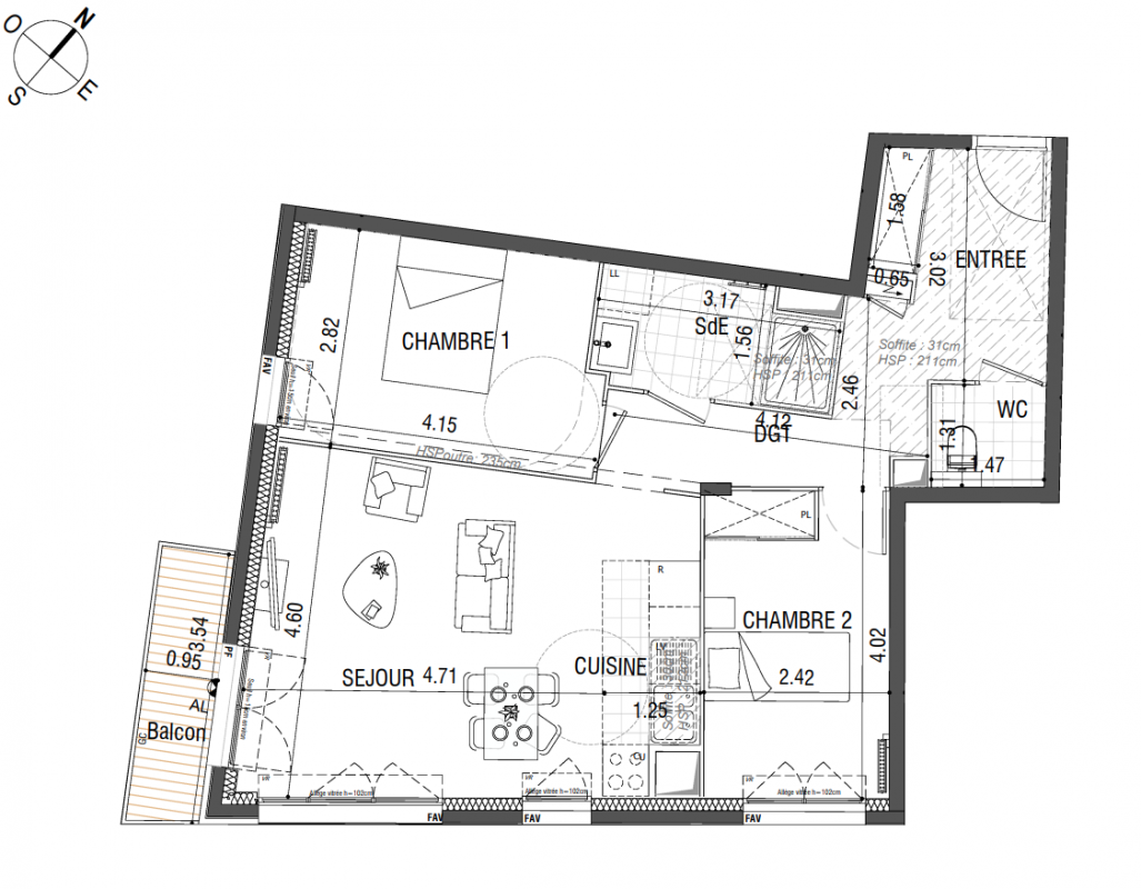
Appt. au 4ème
Pièces
T3
Surface
64 m²
Exposition
Sud-Ouest
Ville
Viroflay (78220)
Livraison
1er trimestre 2028
Informations
01 81 80 39 10

Présentation du programme "LE CLOS HERBRON"

Idéalement située au sein d'un quartier résidentiel recherché et parfaitement desservi, la résidence se trouve à proximité immédiate des commerces, des établissements scolaires et à seulement quelques minutes à pied de la gare « Viroflay Rive Gauche », offrant un accès rapide vers Paris (moins de 20 min) et Versailles (5 min). Cette résidence élégante et intimiste se compose d'un immeuble à l'architecture contemporaine et soignée ainsi que de deux maisons de ville avec accès indépendant. Du studio au 5 pièces, chaque logement offre de belles prestations et de généreux espaces extérieurs (balcons, loggias, terrasses ou jardins privatifs), pensés pour un confort de vie optimal. Une adresse rare, mêlant qualité architecturale, environnement privilégié et accessibilité directe aux bassins d'emploi de l'Ouest parisien. Contactez nous dès maintenant pour être les premiers informés ! Pour toutes informations complémentaires, prenez contact avec nous !

Autres logements T3 du programme "LE CLOS HERBRON"

Disponibilité Prix Genre Pièces Surface Étage
Voir
Disponible
447 000€ Appt. T3 64m2 3ème
DO NOT CLICK