793 000€
Maison au 2ème
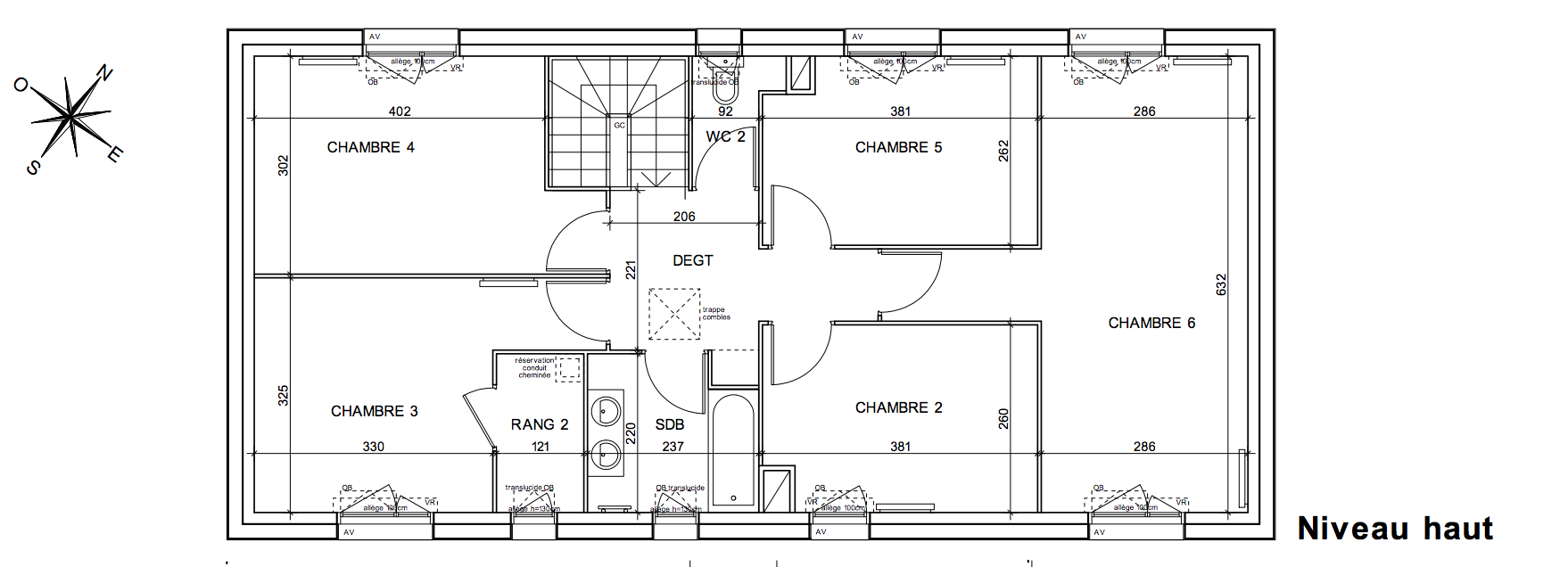
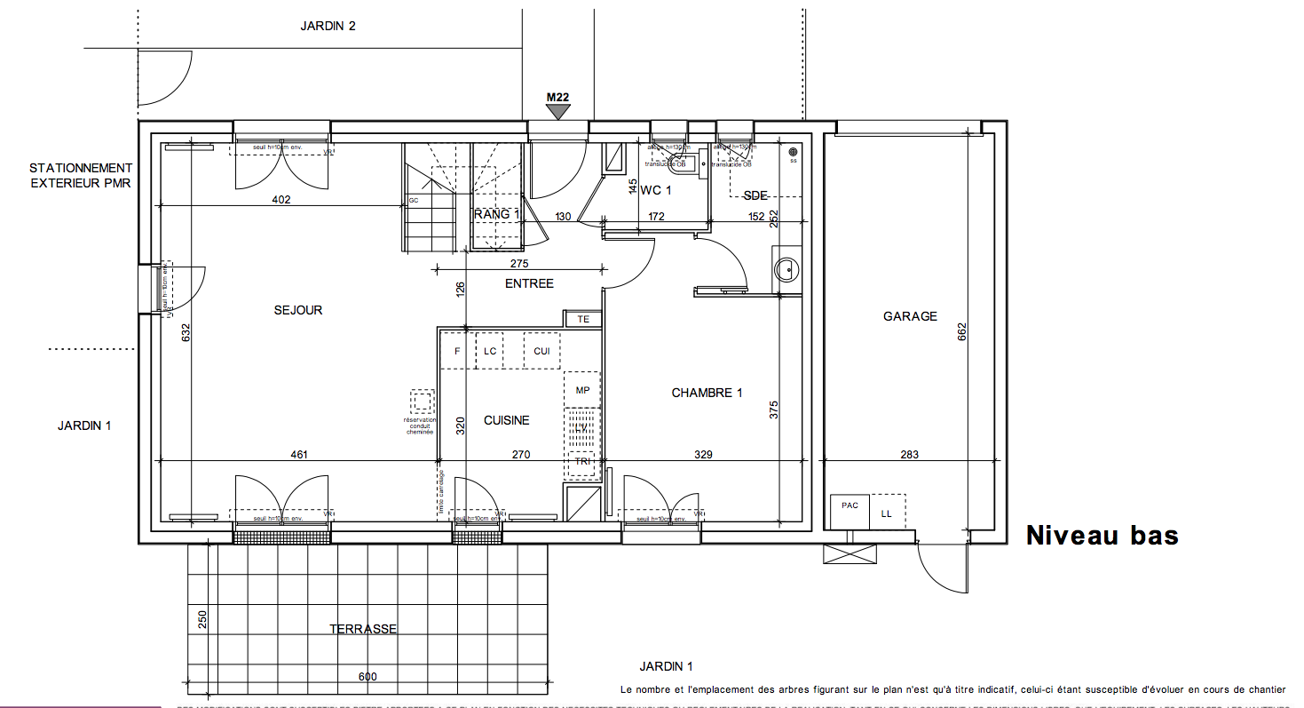
T7
143.93 m²
Sud
Villennes-sur-Seine (78670)
2ème trimestre 2028
01 81 80 39 10
Présentation du programme "SEINE DE VIES"
Niché dans l'écrin préservé de Villennes-sur-Seine, future station du RER E à 30 minutes de Paris Gare du Nord, Vianova dévoile une réalisation d'exception. Conçue comme un véritable parc habité, cette résidence marie l'élégance architecturale à de généreux espaces verts privatifs et partagés. Chaque appartement, du studio au 5 pièces, s'ouvre sur l'extérieur par un balcon, une terrasse ou un jardin. Les maisons, proposant jusqu'à 6 chambres avec garages et jardins privatifs, incarnent l'art de vivre familial. École, commerces et promenades à proximité immédiate, gare accessible en 10 minutes à vélo : tout est réuni pour une vie pratique et sereine. L'excellence Vianova s'accompagne d'une solution d'accession facilitée avec Vianova Access : un apport limité pour des mensualités proches d'un loyer, sans compromis sur la qualité.
Autres logements T7 du programme "SEINE DE VIES"
| Disponibilité | Prix | No | Genre | Pièces | Surface | Étage | Disponibilité | Prix | ||
|---|---|---|---|---|---|---|---|---|---|---|
| Voir | Disponible | 788 000€ | M20 | Maison | T7 | 143.93m2 | 2ème | Disponible | 788 000€ | Voir |
| Voir | Disponible | 780 000€ | M21 | Maison | T7 | 143.93m2 | 2ème | Disponible | 780 000€ | Voir |
| Voir | Disponible | 833 000€ | M23 | Maison | T7 | 143.93m2 | 2ème | Disponible | 833 000€ | Voir |

